Back to Documents

Mayor and Council Agenda

PDF Mayor and Council Sep 22, 2025 at 07:00 PM Processed: Sep 19, 2025 at 09:09 PM

PDF Content

Pages: 77

City of Roswell Meeting Agenda Mayor and Council Regular Meeting Mayor Kurt Wilson Councilmember Sarah Beeson Councilmember Christine Hall Councilmember G. Lee Hills Councilmember David Johnson Councilmember William Morthland Councilmember Allen Sells Monday, September 22, 2025 7:00 PM City Hall - Council Chambers Welcome Roll Call Invocation/Moment of Silence - Nelson Zivic, President - The Church of Jesus Christ of Latter-Day Saints Pledge of Allegiance - United States Army Specialist Micah Clark Mayor's Report - 1. #10069 Reading of a Proclamation for the Esteemed Veteran of Roswell Award to United States Army Specialist Micah Clark. - 2. #10040 Reading of a Proclamation for Roswell's 75th Annual Frances McGahee Youth Day Celebration. Presented by Steven Malone, Director of Recreation and Parks 3. #10071 Roswell Results Update. Consent Agenda - 1. #10070 Approval of the September 8, 2025 Special Called Mayor and Council meeting minutes, September 8, 2025 Regular Mayor and Council meeting minutes, and September 15, 2025 Special Called Mayor and Council meeting minutes. - 2. #9991 Approval for the Mayor or City Administrator to award a contract with Inliner Solutions, LLC for the Stormwater Lining Package project for \$355,471 and with a project budget authorization of \$391,018. Presented by Brian Watson, Director of Environmental/Public Works
3. #10000 Approval for the Mayor or City Administrator to sign an Intergovernmental Agreement (IGA) with Fulton County for Water Service and Sewer Billing. Presented by Brian Watson, Director of Environmental/Public Works Regular Agenda 1. #10043 Approval of an Ordinance to Adopt a Millage Rate of 4.949 for Tax Year 2025. (Second Reading) Presented by Bill Godshall, Chief Financial Officer - 2. #9826 Approval of a Sidewalk Café at 43/45 Park Square Court (20251723). Presented by Jeannie Peyton, Planning and Zoning Director - 3. #10038 Approval of a Resolution to adopt the annual update to the Community Work Program (CWP) and Community Improvement Element (CIE) covering the five year period from 2030. Presented by Jeannie Peyton, Planning and Zoning Director City Attorney's Report 4. #10066 Approval of a Resolution authorizing the Roswell Development Authority (RDA) to enter into negotiations on a City owned property located at Bowen Road and Highway 92. Presented by Joseph Cusack, Assistant City Attorney 5. #10068 Recommendation for Closure to Discuss Personnel, Litigation and Real Estate. Adjournment PUBLIC COMMENT PROTOCOL: - To address Mayor and Council on an Agenda Item, complete a Comment Card and submit to the City Clerk. - Comments by individual speakers are limited to five minutes per item. (Exemptions to the time limit are zoning applicants, appeals, and semi-judicial matters before Mayor and Council.). Comments should only be made on the agenda item under consideration. - Documents, pictures or presentation materials for distribution to the Mayor and Council must be submitted to the City Clerk by noon on Monday prior to the meeting. Email to citizendocuments@roswellgov.com or drop off at City Hall. RULES OF DECORUM FOR ALL MEETINGS (City of Roswell Code of Ordinances Section 2.1.6): The City of Roswell strives to provide a positive experience for those visiting city facilities and promotes an environment of personal safety and security – free from intimidation, threats or violent acts. All are expected to exhibit common courtesy, civility, and respect for others. Members of the audience will respect the rights of others and will not create noise or other disturbances that disrupt or disturb persons who are addressing the Mayor & Council who are speaking or otherwise impede the orderly conduct of the meeting. Violations may result in the violator being removed from the premises.
City of Roswell Mayor and Council AGENDA ITEM REPORT ID # - 10069 MEETING DATE: September 22, 2025 DEPARTMENT: Mayor's Report ITEM TYPE: Proclamation - Mayor's Report Reading of a Proclamation for the Esteemed Veteran of Roswell Award to United States Army Specialist Micah Clark. Item Summary: This Proclamation celebrates United States Army Specialist Micah Clark's service to our great community of Roswell, to fellow service members and to our Country. Presented by: Mayor Kurt M. Wilson
Army Specialist Micah Clark Esteemed Veteran of Roswell WHEREAS, Micah Clark began his military service in 2008 at the age of 18, entering the United States Army and completing basic training at Fort Benning, Georgia; and WHEREAS, during his years of service with the Army, the Georgia National Guard, and later the Army Reserves, Specialist Micah Clark held critical roles as a driver, gunner, and mentor to Afghan officers, demonstrating courage, discipline, and leadership; and WHEREAS, Specialist Clark deployed for 11 months to Afghanistan, where he and his unit faced multiple ambushes and firefights while carrying out their mission to build trust with local communities and to train Afghan military forces, an effort that reflected both bravery and a commitment to lasting peace; and WHEREAS, his military service was marked by distinction, earning him numerous honors including the Afghanistan Campaign Medal with Campaign Star, Army Commendation Medal, Army Good Conduct Medal, National Defense Service Medal, Global War on Terrorism Service Medal, NATO Medal, Armed Forces Reserve Medal with "M" Device, Combat Infantryman Badge, and other commendations recognizing his sacrifice and excellence; and WHEREAS, after completing his service with the Georgia National Guard in 2011 and fulfilling his eightyear contract with the Army Reserves in 2016, Micah Clark pursued higher education, earning a Bachelor of Science in Business Administration from Auburn University and obtaining his Georgia real estate license; and WHEREAS, Micah Clark has continued his life of service as the CEO and Founder of Clark Brothers Roofing & Construction, a Roswell-based business that not only provides quality residential and commercial renovations but also gives back to the community by sponsoring numerous nonprofits, schools, and local sports teams; and WHEREAS, Micah Clark's experiences in combat, including the loss of a close friend, deepened his appreciation for the cost of freedom and inspired his drive to build a meaningful future for his family, employees, and community. The values of sacrifice, honor, and integrity instilled during his service continue to guide his work and leadership in Roswell today; and WHEREAS, the City of Roswell and its citizens are proud to recognize Micah Clark's devotion to country, his distinguished military service, and his ongoing contributions to our community through leadership, philanthropy, and entrepreneurship. NOW THEREFORE, I, Kurt M. Wilson, Mayor of the City of Roswell, do hereby name Specialist Richard Heneghan an Esteemed Veteran of Roswell, and call upon all our citizens to recognize his outstanding service to our country and our community and that there is no higher calling than those who serve in the Armed Forces. IN WITNESS WHEREOF, I have hereunto set my hand and seal this 29th day of September 2025. MAYOR KURT M. WILSON
City of Roswell Mayor and Council AGENDA ITEM REPORT ID # - 10040 2 MEETING DATE: September 22, 2025 DEPARTMENT: Mayor's Report ITEM TYPE: Proclamation Reading of a Proclamation for Roswell's 75th Annual Frances McGahee Youth Day Celebration. Item Summary: Roswell Youth Advisory Council members will proclaim Saturday, October 4, 2025, as Youth Day in the City of Roswell. This year's Annual Youth Day Celebration theme is "Growing Together." Youth officials representing local high schools will officially serve from September 22, 2025, through October 3, 2025. They will attend the Youth Day Parade with the officials they represent on Saturday, October 4, 2025. Presented by: Steven Malone, Deputy Director of Recreation and Parks, Historic, and Cultural Affairs
ROSWELL'S 75 th ANNUAL FRANCES McGAHEE YOUTH DAY CELEBRATION WHEREAS, The Youth of Roswell are an important part of the community; and WHEREAS, The Youth of Roswell represent the future of our great City; and WHEREAS, The City of Roswell for the past 75 years has celebrated its Youth with a City-wide celebration; and WHEREAS, The theme for the 75 th Annual Youth Day Celebration is "Growing Together"; and WHEREAS, Festivities for Saturday, October 4th will include the Annual Frances McGahee Youth Day Parade, Fall Farm Days at Smith Plantation, Touch-a-Truck at Roswell City Hall, and Art Block, highlighting both National Arts and Humanities Month and National Hispanic Heritage Month, at the Roswell Cultural Arts Center. NOW, THEREFORE, I, the Youth Advisory Council Interim Mayor of the City of Roswell, do hereby proclaim Saturday, October 4 th, 2025 as Youth Day in the City of Roswell, and I call upon all our citizens, young and old, to help us celebrate and promote this most honored day in our community. In witness whereof, I have hereunto set my hand and seal this 22nd day of September, 2025 2.a
Mayor and Council AGENDA ITEM REPORT ID # - 10071 MEETING DATE: September 22, 2025 DEPARTMENT: Mayor's Report ITEM TYPE: Update Roswell Results Update.
City of Roswell Mayor and Council AGENDA ITEM REPORT ID # - 10070 MEETING DATE: September 22, 2025 DEPARTMENT: Administration ITEM TYPE: Minutes Approval of the September 8, 2025 Special Called Mayor and Council meeting minutes, September 8, 2025 Regular Mayor and Council meeting minutes, and September 15, 2025 Special Called Mayor and Council meeting minutes. Item Summary: Approval of the September 8, 2025 Special Called Mayor and Council meeting minutes, September 8, 2025 Regular Mayor and Council meeting minutes, and September 15, 2025 Special Called Mayor and Council meeting minutes.
DRAFT Unapproved 1.1.a City of Roswell Meeting Minutes Mayor and Council Special Called Meeting Mayor Kurt Wilson Councilmember Sarah Beeson Councilmember Christine Hall Councilmember G. Lee Hills Councilmember David Johnson Councilmember William Morthland Councilmember Allen Sells Monday, September 8, 2025 5:00 PM City Hall - Council Chambers Welcome Mayor Kurt Wilson: Present, Councilmember Sarah Beeson: Present, Councilmember Christine Hall: Excused, Councilmember G. Lee Hills: Present, Councilmember David Johnson: Present, Councilmember William Morthland: Excused, Councilmember Allen Sells: Excused. City Attorney's Report 1. #10035 Recommendation for Closure to Discuss Personnel, Litigation and Real Estate. Councilmembers Christine Hall, William Morthland and Allen Sells were present at Closure. RESULT: APPROVED [UNANIMOUS] MOVER: David Johnson, Councilmember SECONDER: Sarah Beeson, Councilmember IN FAVOR: Sarah Beeson, G. Lee Hills, David Johnson EXCUSED: Christine Hall, William Morthland, Allen Sells Adjournment The meeting was adjourned at 5:03 PM
1.1.b City of Roswell Meeting Minutes Mayor and Council Regular Meeting Mayor Kurt Wilson Councilmember Sarah Beeson Councilmember Christine Hall Councilmember G. Lee Hills Councilmember David Johnson Councilmember William Morthland Councilmember Allen Sells Monday, September 8, 2025 7:00 PM City Hall - Council Chambers Welcome Mayor Kurt Wilson: Present, Councilmember Sarah Beeson: Present, Councilmember Christine Hall: Present, Councilmember G. Lee Hills: Present, Councilmember David Johnson: Present, Councilmember William Morthland: Present, Councilmember Allen Sells: Present. Invocation/Moment of Silence - Youth Director Dara Vidito, Congregation Beth Hallel Pledge of Allegiance - United States Air Force Staff Sergeant Monica Graham Mayor's Report 1. #10031 Reading of a Proclamation for the Esteemed Veteran of Roswell Award to United States Air Force Staff Sergeant Monica Graham. Honoring United States Air Force Staff Sergeant Monica Graham's service to our nation, to fellow service members and to the Roswell community. RESULT: PROCLAMATION READ 2. #9995 Proclamation for Esteemed Roswell Public Safety Employee award to Captain Jeff Mealor as Roswell Fire Company Officer of the Year for 2024. Recognition of Captain Jeff Mealor as Roswell Fire Company Officer of the Year for 2024 for his outstanding service and commitment to our City. RESULT: PROCLAMATION READ 3. #10062 A Proclamation proclaiming September as 2025 Childhood Cancer Awareness Month to increase awareness of childhood cancer and the need for funding and research and to support families in Roswell affected by childhood cancer. Proclaims September as 2025 Childhood Cancer Awareness Month to increase awareness of childhood cancer and the need for more funding and research and to support families in Roswell affected by childhood cancer. RESULT: PROCLAMATION READ
1.1.b 4. #10013 Approval of a Planning Commission (PC) appointment - Gurtej Narang. RESULT: APPROVED [UNANIMOUS] MOVER: G. Lee Hills, Councilmember SECONDER: Christine Hall, Councilmember IN FAVOR: Beeson, Hall, Hills, Johnson, Morthland, Sells 5. #10036 Oath of Office - Gurtej Narang (Planning Commission). RESULT: OATH OF OFFICE READ 6. #10030 Roswell Results Update. Announcement of the official launch of RoswellResults.com, a dynamic new website showcasing the measurable progress the City of Roswell has made in service to our community. RoswellResults.com is structured around six strategic pillars that represent the heart of our mission, turning bold goals into real, tangible outcomes that enhance the quality of life for every Roswell resident. These pillars include: 1. Best in Class Safety - Ensuring our fire, police, and emergency services are wellstaffed, well-equipped, and nationally recognized. 2. Service Excellence - Providing City services that are modern, dependable, and easy to access. 3. Economic Development - Revitalizing key corridors, attracting new jobs, and shaping a sustainable, business-friendly future. 4. Infrastructure Investment - Delivering high-impact projects that improve mobility, utility systems, and public spaces. 5. Stewarding with Integrity - Managing taxpayer funds with transparency, discipline, and forward-thinking stewardship. 6. Top Place to Work - Investing in city staff, culture, leadership, and systems to build a high-performing workforce. These pillars have guided a series of remarkable accomplishments. Explore these successes firsthand on RoswellResults.com to learn about key projects and stay informed about how we are building a stronger, safer, and more connected Roswell. - Updates on key projects the City is currently delivering for our community: · The City initiated careful deconstruction of Doc's Café, a historic landmark central to the Groveway community. The goal is to preserve architecturally and culturally significant elements from the building to honor Doc's Café as a physical emblem of Black community heritage in Roswell. Plans for a permanent site will be shared at a later stage. Specialists in architecture, cultural history, and historic documentation are using advanced tools such as 3D laser scanning and CAD drawings to record and prioritize notable materials for potential future use and safeguard structural components during deconstruction and create detailed documentation to guide future design and interpretive efforts. - · Last week, PBS Aerospace officially opened the doors of its new North American headquarters in Roswell! Last year, PBS Aerospace, a major manufacturer of worldclass small turbojet engines based in the Czech Republic, selected Roswell as its U.S. base for manufacturing and research and development (R & D) operations. This move brings a \$20 million investment and 150 jobs to Roswell, and advances the City's position as a hub for innovation and aerospace development. Positioning Roswell at the forefront of emerging technology has been a cornerstone of our economic strategy. PBS is proof this vision is not just an aspiration-it's a reality! - · Major improvements were completed at East Roswell Park and East Roswell Dog Park that include new parking, improved trail connectivity, enhanced ADA accessibility, upgraded stormwater systems and many other enhancements to a park that has been a community treasure for more than 30 years.
1.1.b Consent Agenda RESULT: CONSENT AGENDA APPROVED [UNANIMOUS] MOVER: David Johnson, Councilmember SECONDER: Allen Sells, Councilmember IN FAVOR: Beeson, Hall, Hills, Johnson, Morthland, Sells 1. #10034 Approval of the minutes of the August 25, 2025 Special Called Mayor and Council meeting and August 25, 2025 Regular Mayor and Council meeting. Regular Agenda 1. #10043 Approval of an Ordinance to Adopt a Millage Rate of 4.949 for Tax Year 2025. (First Reading) The First Reading of the Ordinance to adopt a millage rate of 4.949 for Tax Year 2025 was approved. A state required Public Hearing on the millage rate will be held on September 15, 2025 at 6:00 PM. The Second Reading of the Ordinance to adopt the millage rate will be on September 22, 2025. RESULT: APPROVED FIRST READING [UNANIMOUS] Next: 9/22/2025 7:00 PM MOVER: Christine Hall, Councilmember SECONDER: David Johnson, Councilmember IN FAVOR: Beeson, Hall, Hills, Johnson, Morthland, Sells 2. #10026 Approval of a Resolution for issuance of Downtown Development Authority (DDA) Revenue Bonds and Intergovernmental Contract between the City of Roswell and the DDA to finance the Hill Street parking deck. Resolution No. 31 RESULT: APPROVED [UNANIMOUS] MOVER: Allen Sells, Councilmember SECONDER: David Johnson, Councilmember IN FAVOR: Beeson, Hall, Hills, Johnson, Morthland, Sells 3. #10027 Resolution Authorizing the Mayor or City Administrator with the City Attorney's Office to close on the Hill Street Land Exchange Agreement. Resolution No. 32 RESULT: APPROVED [UNANIMOUS] MOVER: Allen Sells, Councilmember SECONDER: David Johnson, Councilmember IN FAVOR: Beeson, Hall, Hills, Johnson, Morthland, Sells
Regular Meeting Monday, September 8, 2025 7:00 PM City Attorney's Report 4. #10033 Recommendation for Closure to Discuss Personnel, Litigation and Real Estate. RESULT: NO CLOSURE Adjournment The meeting was adjourned at 8:21 PM
DRAFT UNAPPROVED 1.1.c City of Roswell Meeting Minutes Mayor and Council Special Called Public Hearing on Millage Rate Mayor Kurt Wilson Councilmember Sarah Beeson Councilmember Christine Hall Councilmember G. Lee Hills Councilmember David Johnson Councilmember William Morthland Councilmember Allen Sells Monday, September 15, 2025 6:00 PM City Hall - Council Chambers Welcome Mayor Kurt Wilson: Present, Councilmember Sarah Beeson: Excused, Councilmember Christine Hall: Present, Councilmember G. Lee Hills: Present, Councilmember David Johnson: Present, Councilmember William Morthland: Present, Councilmember Allen Sells: Present. Invocation/Moment of Silence Pledge of Allegiance Mayor's Report 1. Public Hearing on the Millage Rate of 4.949 for Tax Year 2025. Adjournment The meeting was adjourned at 6:21 PM.
City of Roswell Mayor and Council AGENDA ITEM REPORT ID # - 9991 MEETING DATE: September 22, 2025 DEPARTMENT: Environmental/Public Works ITEM TYPE: Contract Approval for the Mayor or City Administrator to award a contract with Inliner Solutions, LLC for the Stormwater Lining Package project for \$355,471 and with a project budget authorization of \$391,018. Item Summary: The purpose of this project is to rehabilitate 18 pipes and structures along 9 different roads using approved methods to mitigate potential stormwater impacts to affected areas. The pipes range in sizes from 18" to 48" and are mostly corrugated metal pipes (CMP). The pipes will be lined with Cured-In-Place Pipe (C.I.P.P.). The City of Roswell advertised the project (ITB K) on the City's website to the pre-qualified stormwater lining contractors. On July 31, 2025, two (2) bids were received in response to the subject solicitation. The bids ranged from \$355,471 to \$362,995 with the low bid being submitted by Inliner Solutions, LLC. Staff recommends awarding the contract to Inline Solutions, LLC in an amount of \$355,471 and staff also requests that an amount of \$35,547 be allocated from the Stormwater Master Project List budget to account for unforeseen conditions. Committee or Staff Recommendation: On September 9, 2025 the Committees of Council recommended placing this Item on the September 22, 2025 Mayor and Council Agenda. Financial Impact: Funding in the amount of \$391,018 is available in the Stormwater Fund in Org - 50743200, Project - 82016 (Stormwater Master Project List) for Stormwater Lining Projects. Recommended Motion: Motion to approve the Mayor or City Administrator to award a contract with Inliner Solutions, LLC for the Stormwater Lining Package project in an amount not to exceed \$355,471. Presented by: Brian Watson, P.E., Director of Environmental/Public Works
To: Brian Watson, Environmental Public Works Director From: Kimberly M. Fletcher, Purchasing Analyst II Subject: ITB-K Multiple Stormwater Lining Locations Date: September 18, 2025 Procurement Memo for ITB-K Multiple Stormwater Lining Locations Environmental Public Works Multiple Stormwater Lining Locations project objective is to rehabilitate all pipe and structures specified using approved methods to mitigate potential issues to affected areas. Prequalified vendors were solicited for the Invitation to Bid K Multiple Stormwater Lining Locations which was posted to Bonfire on July 17th, 2025, with a due date of July 31st, 2025. The solicitation was only provided to prequalified construction vendors listed below for a two (2) week period. This was implemented since the solicitation was listed on Bonfire as private and only emailed to eight (8) prequalified vendors. The Procurement Department only received two (2) questions for this solicitation which were answered directly on the Bonfire website. Two (2) vendors, Federal EC LLC and Inliner Solutions LLC submitted. Environmental Public Works Department confirmed to move forward with the lowest bidder, which is Inliner Solutions LLC. Multiple Stormwater Lining Locations 922 Myrtle Street – S.W.P. 3018 Approximately 30 linear feet of 18" non-reinforced concrete pipe to be lined with C.I.P.P. 680 Rounsaville Road – S.W.P. 2273 approximately 30 L.F. of 18" C.M.P. – S.W.P. 2274 approximately 250 L.F. of 18" C.M.P. both to be lined with C.I.P.P. 785 Kingridge Drive – S.W.P. 8258 approximately 32 LF of 24" C.M.P. – S.W.P. 2156 approximately 125 LF of 24" C.M.P. 11320 Crenwood Cove – S.W.P. 128308 approximately 30 LF of 36" C.M.P. – S.W.P. 376 approximately 55 LF of 30" C.M.P. – S.W.S. 2517 install pedestal top 320 Spring Creek Road – S.W.P. 4001 approximately 32 LF of 18" C.M.P. – S.W.P. 4002 approximately 20 LF of 18" C.M.P. 325 Roswell Hills Court – S.W.P. 2575 approximately 30 LF of 18" C.M.P. – S.W.P. 2576 approximately 27 LF of 24" C.M.P. 850 Kingridge Drive – S.W.P. 6132 approximately 130 LF of 42" C.M.P. – S.W.P. 6131 approximately 160 LF of 30" C.M.P. – S.W.S. 2502 non-daylighted junction box will need to have 1
120 River Landing Drive – S.W.P. 12762 approximately 30 LF of 18" C.M.P. – S.W.P. 12763 approximately 120 LF of 18" C.M.P. 105 River Landing Drive – S.W.P. 771 approximately 30 LF of 18" C.M.P. – S.W.P. 4610 approximately 35 LF of 18" C.M.P. – S.W.P. 4611 approximately 60 LF of 18" R.C.P. Vendors emailed Multiple Stormwater Lining Locations ITB Directly: Chatfield Sak Construction Federal EC LLC Inliner Solutions LLC Southern Premier Contractors Gradeco Utility Asset Management ProShot Concrete Puris Corporation
City of Roswell Mayor and Council AGENDA ITEM REPORT ID # - 10000 MEETING DATE: September 22, 2025 DEPARTMENT: Environmental/Public Works ITEM TYPE: Intergovernmental Agreement Approval for the Mayor or City Administrator to sign an Intergovernmental Agreement (IGA) with Fulton County for Water Service and Sewer Billing. Item Summary: The previous intergovernmental agreement (IGA) between the City of Roswell and Fulton County for water service was executed in 1962 and expired in April of 2022. This agreement: - · Allows Fulton County to supply Roswell with water through seven emergency interconnects; - · Establishes a standard communication process between Roswell and Fulton County during emergencies; - · Establishes ownership of required interconnect components; - · Establishes responsibility for regulatory required annual maintenance, monitoring, calibration, etc.; and - · Allows Roswell to act as a billing collection agent for sewer services on behalf of Fulton County for a 10% commission. The agreement term for the new IGA will be in effect for fifteen (15) years with a five (5) year extension upon written notice. Committee or Staff Recommendation: On September 9, 2025 the Committees of Council recommended placing this Item on the September 22, 2025 Mayor and Council Agenda. Financial Impact: The 10% billing collection agent revenue is billed and collected in Roswell's Water and Sewer Fund. Recommended Motion: Motion to approve the Mayor or City Administrator signing an Intergovernmental Agreement (IGA) with Fulton County for Water Service and Sewer Billing. Presented by: Brian Watson, P.E., Director of Environmental/Public Works
This INTERGOVERNMENTAL AGREEMENT ("Agreement') between the CITY OF ROSWELL, a municipal corporation of the State of Georgia ("Roswell"), and FULTON COUNTY, GEORGIA, a political subdivision of the State of Georgia ("Fulton") (Roswell and Fulton are individually each referred to as a "Party" and collectively referred to as the "Parties"), is effective as of the date the last Party executes the Agreement. WHEREAS, each of the Parties hereto is a governmental entity of the State of Georgia, having the legal authority and obligation to organize, maintain, and operate systems of water distribution in its respective jurisdiction to serve its citizens; and WHEREAS, Fulton is a party to the Atlanta Fulton County Water Resources Commission, a joint venture with the City of Atlanta, which owns and operates the Tom Lowe Water Treatment Plant ("Tom Lowe WTP"); and WHEREAS, the terms of this Agreement are intended to address the long-term Parties' needs related to water management; and WHEREAS, the Parties wish to set terms and conditions and to create procedures for the current and future supply of water to Roswell's Water Service Area through interconnections between the two public water systems; and WHEREAS, the Parties also wish to be able to provide emergency water supplies through these interconnections and establish the terms and conditions under which the systems can be physically connected and water made available to each other in times of emergency; and
WHEREAS, Roswell has a computerized billing system in operation in Roswell's Water Service Area and has served as the sewer billing collection agent for Fulton County sewer in this region; and WHEREAS, Fulton would like Roswell to serve as the billing collection agent for sewer services with Fulton County's service area, and Roswell is amenable to doing so pursuant to the terms of this Agreement. NOW, THEREFORE, in consideration of the mutual rights and obligations set forth herein and for other good and valuable consideration, the receipt and sufficiency of which is hereby acknowledged, the Parties do agree as follows: ARTICLE 1. DEFINITIONS - 1.1 APPLICABLE INTEREST RATE. The rate of one percent per month. - 1.2 AVAILABLE POTABLE WATER. A surplus of potable water not immediately needed by the Selling Party. - 1.3 BUSINESS DAY. Each day excluding each Saturday, Sunday, and state or federal holiday on which banks in the State of Georgia are authorized to close for purposes of customary banking services. - 1.4 CITY ADMINISTRATOR. The Administrator of Roswell, or his or her designee, for purposes of this Agreement. - 1.5 COMMUNITY WATER SYSTEM. A public water system that supplies water to the same population year-round. - 1.6 DATE OF EXECUTION. The date on which the last party to this Agreement executes this Agreement.
1.7 DIRECTOR OF ENVIRONMENTAL / PUBLIC WORKS. The Director of the Department of Environmental / Public Works of Roswell, or his or her designee, for purposes of this Agreement. - 1.8 DIRECTOR OF PUBLIC WORKS. The Director of the Department of Public Works of Fulton County, or his or her designee, for purposes of this Agreement. - 1.9 EMERGENCY WATER CONDITION. A shortage of potable water to meet the Essential Water Needs of the Requesting Party's customers that threatens their health, safety, and welfare. - 1.10 ESSENTIAL WATER NEEDS. The minimum amount of water needed for residential and commercial means for food processing, drinking, toilet flushing, firefighting, hospital use, and critical asset use and a portion of the system's Non-Revenue Water. - 1.11 GOVERNING AUTHORITY. As applicable, the City Council of Roswell, Georgia, or the Board of Commissioners of Fulton County, Georgia, or any replacement governmental body vested with the power to govern the respective jurisdiction under the laws of the State of Georgia. - 1.12 INTERCONNECTION. A connection, consisting of meter(s), meter vault(s), valves, backflow preventer(s), backflow preventer vault(s), and piping between two water systems, in this case, between the public water systems of Roswell and Fulton. - 1.13 MONTHLY OPERATING REPORT. Reports required for public water systems submitted monthly to the state regulatory agency, the Georgia Environmental Protection Division. Monthly Operating Reports include information about the finished water as well as the quantity of purchased water acquired from other public water systems. - 1.14 NON-REVENUE WATER. Overall water losses, defined as the difference between volume
of water produced or purchased and the volume of water that was billed to customers. - 1.15 NORTH FULTON WATER DISTRIBUTION SYSTEM. The system distributing water to most of Fulton County north of the Chattahoochee River, including all of Alpharetta, Johns Creek, and Milton, as well as a majority of Roswell. - 1.16 RATES. Rates shall be established on the basis of a utility industry standard cost of service study prepared by or on behalf of Fulton. Such study shall serve to establish at least the following three rate categories: (1) retail rates billed to residential/commercial customers, (2) wholesale rates, inclusive of a capital component and operations and maintenance component based on no capital contribution to the System ("Capital/O&M"); and (3) wholesale rates, without a capital component and with operations and maintenance based on that customer's capital contribution to the System ("O&M"). Whenever Fulton deems it necessary to revise its rates, Fulton shall notify Roswell in writing of the pending rate increase not less than ninety (90) days prior to submittal of such revised rates to Fulton's Governing Authority for approval. Upon approval of such rates, Fulton shall notify Roswell in writing by the first to occur: (a) thirty (30) days after such approval by the respective Governing Authority, or (b) at least thirty (30) days prior to the effective date of such rates, which notice shall state each rate and the effective date thereof. Nothing herein is intended to be construed as affecting Fulton's sole authority to revise its rates. All documentation used in cost-of-service studies, if any, shall be provided by Fulton to Roswell within ten (10) Business Days of the date upon which Fulton's Governing Authority revises its rates. - 1.17 WATER DISTRIBUTION SYSTEM. The physical infrastructure consisting of the water mains, hydrants, valves, meters, fittings, facilities, and pump stations which transport potable water to customers.
1.18 WATER SERVICE AREA. The geographic area that receives drinking water from a given Community Water System. ARTICLE 2. INTERCONNECTIONS - 2.1 CURRENT INTERCONNECTIONS. There are currently seven (7) active Interconnections between the North Fulton Water Distribution System, as shown in EXHIBIT A, and Roswell's Water Service Area, as shown in EXHIBIT B. - 2.2 NEW INTERCONNECTION PROPOSAL. Should Roswell determine that an Interconnection is necessary, Roswell shall make a proposal in writing to Fulton requesting an interconnection between the two systems. The request should describe the purpose of the interconnect, state whether it will be a general supply interconnection (normally open) or an emergency use interconnection (normally closed) and anticipate connection sizing and expected use amount. Within six (6) months of such a request, if both parties agree to the interconnection installation, the equipment to allow water to flow shall be installed. The current status of each existing interconnection is shown in EXHIBIT B. - 2.3 INTERCONNECTION COMPONENTS. An interconnection shall consist of, at minimum, the following components: a meter, a meter vault box, a valve owned by Fulton upstream of the meter vault, a backflow preventer, and piping. The meter, the meter vault, and the piping and/or valves within three (3) feet of either side of the meter vault shall be owned by Fulton, and Fulton will be responsible for the maintenance of these components. Roswell shall install and own, at minimum, a backflow preventer and backflow preventer vault outside of three (3) feet of the meter vault and shall be responsible for those component's maintenance. All backflow preventers shall be tested at least annually by
Roswell, and records of those tests shall be submitted to Fulton within thirty (30) days of their completion. - 2.4 INTERCONNECTIONS COSTS. Costs for establishing interconnections as described above shall be borne by Roswell. The cost of dismantling interconnections shall be shared equally (50/50) between Roswell and Fulton. - 2.5 METERING. Fulton shall install a meter at the interconnection, and Fulton shall be responsible for maintaining, calibrating, and reading its meter at its own expense. Annually, or upon written notice by Roswell, Fulton shall inspect and test their meter. Testing shall occur within sixty (60) days of such a request. Copies of these inspections and tests shall be available within thirty (30) days of request. No meter shall be allowed to remain in service that has an error in excess of published American Water Works Association ("AWWA") Standards (or such succeeding standards) at the time of the testing. If a party requests a meter inspection in addition to the annual inspection, and the meter conforms to AWWA standards upon testing, the party requesting the inspection shall pay all inspection and testing costs. If the meter is not properly calibrated, the requesting party shall not be liable for the inspection and testing costs which shall be paid by the meter owner, and the meter owner shall immediately (a) restore the meter to an accurate condition or install a new meter, and (b) credit the requesting party for any overpayment based on the information available to the Parties' utility staffs. - 2.6 VALVE INSTALLATION AND EXERCISE. All valves within three (3) feet of the meter vault box shall be owned and maintained by Fulton County. Any valves outside of three (3) feet of the meter vault box within the service area of Roswell shall be owned and maintained by Roswell. At each interconnection, valves installed will be capable of closing
off flow from one water system to another. Annually, or upon written notice by the other party, each shall exercise their valves. Copies of these results shall be made available upon request. Inoperable valves shall not be allowed to remain in service and must be replaced or repaired at the owner's expense. - 2.7 INTERCONNECTION STATUS CHANGE. Should Roswell request that a normally closed (emergency use) interconnection be converted to a normally open (general supply) interconnection, it shall provide Fulton written notice with at least ninety (90) days prior to the requested change. If Fulton agrees that the change is necessary within the ninety (90) days, the Parties' utility staff will coordinate to make any necessary changes as applicable, including but not limited to opening valves, installing water mains, installing meters and meter vaults, and/or installing backflow preventers. If Fulton does not agree to the status change, Fulton will notify Roswell in writing within the same ninety (90) period. In no event will the status of an interconnection change without both Parties' approval. - 2.8 WATER QUALITY. Fulton shall provide treated water to Roswell at the point or points of connection to the Interconnections. Treated water must meet the water quality requirements of all applicable regulatory agencies, including the U.S. Environmental Protection Agency and the Environmental Protection Division of the Georgia Department of Natural Resources. Further, if Roswell or Fulton proposes any change to their water treatment process that would affect the water quality chemistry of their finished water while this Agreement is in effect, notice shall be furnished to the other party at least ninety (90) days prior to the effective date of the proposed change. - 2.9 WATER CONSERVATION. This Agreement shall be subject to all state and federal water conservation regulations. If the customers of Fulton are at any time under an outdoor water
use restriction while water is being supplied to Roswell, Roswell agrees to impose restrictions at least as strict as those imposed by Fulton. If Fulton requests a variance to any state mandated drought conservation procedures, Fulton will notify Roswell at least ten (10) days prior to submitting such request to the state regulatory authority. 2.10 INTERCONNECTION BILLING. Interconnections shall be billed at the Fulton's wholesale rate (inclusive of O&M/Capital), which is subject to the adjustments described in Article 1.16. Bills for flow through Interconnections will be sent to Roswell by the 10th of the month following the month they are assessed and will be included in the Monthly Operating Reports submitted by Roswell to EPD. Bills not paid within forty-five (45) days of receipt shall be assessed at the Applicable Rate of Interest described in Article 1.1. ARTICLE 3. EMERGENCY USE OF INTERCONNECTIONS 3.1 DISRUPTION OF POTABLE WATER SUPPLY. If Roswell experiences an Emergency Water Condition and desires to purchase Available Potable Water, Roswell shall notify appropriate Fulton staff by phone and in writing via email of the Emergency Water Condition and request Available Potable Water be transferred for a limited period. Fulton shall respond as soon as possible to the request by advising Roswell of the quantity of Available Potable Water. In addition to the communication by staff described above, the Roswell Environmental / Public Works Director shall immediately notify the Fulton Director of Public Works when Emergency Water Conditions develop and request temporary water service from Fulton. Such notice shall include a description of the emergency and expected duration, if known. Notifications shall be made via phone call and email.
When Roswell experiences Emergency Water Conditions or other conditions that require (a) less than one (1) MG of water to be supplied through the Interconnection(s) or (b) require water for less than three (3) days to be supplied through the Interconnection(s), Available Potable Water can be immediately supplied without first receiving approval or response from Fulton's Director of Public Works, though notification is still required. Requests for Available Potable Water in excess one (1) MG, or for Emergency Water Conditions or other conditions expected to last for more than three (3) days require prior approval by Fulton before valves are opened and operated to transfer water from Fulton's distribution system to Roswell. - 3.2 UTILITY STAFF RESPONSIBILITIES. In the event that water is needed by Roswell, staff from either Fulton or Roswell may operate the valves necessary to permit water to be sold from Fulton to Roswell. The staff from the Party that operates the valves to open the valves is responsible for returning all valves to the original position once the temporary water service event is completed. Only appropriate staff shall operate components of the interconnections, including valves. - 3.3 RATE OF SUPPLY. Fulton shall not be required to transfer water to the Roswell in an amount that would violate any of its permits, nor shall Fulton be required to provide more than its Available Potable Water, and Fulton shall not be liable to Roswell or its customers for any interruptions in water service. Fulton shall be obligated to supply water pursuant to this Agreement only to the extent that doing so does not prejudice its ability to fulfill its obligations to its customers and other entities with whom it has contractual obligations. - 3.4 FORCE MAJEURE. Roswell agrees that Fulton will provide Available Potable Water to Roswell continuously during an Emergency Water Condition, subject to the requirements
above, except that temporary disruption of service at any time caused by an act of God, fire, strikes, casualties, war, terrorist act, natural disaster, accidents, necessary maintenance work, breakdowns of or injuries to machinery, pumps or pipelines, civil or military authority, insurrections, riots, acts or declarations of government or regulatory agencies other than Roswell or Fulton, or any other cause beyond the control of Fulton, shall not constitute a breach of this Agreement; and Fulton shall not be liable to Roswell or to its customers for any damage resulting from such unavoidable disruption of service. ARTICLE 4. FINANCE AND PAYMENT FOR SEWER COLLECTION - 4.1.1 ROSWELL AS BILLING COLLECTION AGENT. Roswell agrees to act as a billing collection agent for sewer services on behalf of Fulton within Fulton's Service Area, as designated in Exhibit A. Roswell will receive a commission of 10% of the billed amount for this collection service, and Roswell shall deduct the total amount it receives for providing the collection service before making payments to Fulton pursuant to this Agreement. Each month Roswell will provide a report which shows, for that month: (a) what was billed; (b) what was collected; (c) how much Roswell received in commission; (d) how much was paid to Fulton; and (e) the date of payment to Fulton. - 4.2 METER INSTALLATION. At the time of installation, metering equipment provided by Roswell will meet or exceed the industry standards set by the American Water Works Association ("AWWA") for measuring the quantity of water delivered. The City is responsible for the cost of installation of all meters, and associated appurtenances, serving customers in Roswell's Water Service Area and can directly bill the Roswell Water Service Area Customers for these services.
1.3.a - 4.3 METER ACCURACY. Roswell agrees to inspect, test and, if necessary, repair or replace any non-fire water metering equipment serving Roswell Water Service Area Customers at - least every three (3) to four (4) years for meters three (3) inches and over, beginning one (1) year after the effective date of this Agreement. Fulton will have the right to observe the calibration process, test the calibration equipment, and review the calibration records of Roswell upon written request, at Fulton's expense. A meter registering not more or less than 2% above or below 100% of actual flows will be deemed accurate for the purposes of this Agreement and the Parties' obligations under it. In addition, Roswell should have in place a meter replacement program for inaccurate and/or malfunctioning small (2 inches and less) meters based on evaluation of meter readings or test data and for the regular replacement of such meters every ten (10) to fifteen (15) years, or later if based on statistically significant meter test data. - 4.4 METER ESTIMATES. If any meter fails to measure or appears to have measured inaccurately for any billing period, the amount of water delivered during such billing period will be estimated in accordance with Roswell's then current policies and procedures. In the event that Roswell makes adjustments to Roswell Water Service Area Customers' billable water usage, Roswell will make a corresponding adjustment to the sewer services bill component. Adjustments may be made in the event of malfunctioning meters, leaks, and/or misreading of meters. Adjustments applicable to prior period billings will be deducted from current period payments of billed revenues. - 4.5 FAILURE TO PAY WHEN DUE. In the event of a failure to pay any amount due under this Agreement, interest shall automatically accrue on the delinquent amount in accordance with Section 1.1, from the date such payment is due until full payment of
Attachment: Roswell Water and Sewer Billing IGA FINALdocx (Fulton County Water IGA) such delinquent amount and its accrued interest. ARTICLE 5. PROVISIONS OF GENERAL APPLICATION - 5.1 RIGHT TO SEEK SPECIFIC PERFORMANCE. Roswell and Fulton agree that the costs and damages resulting from a breach of the contractual rights to use the Interconnections up to the specified amounts granted by this Agreement may not be susceptible of monetary calculation, and that damages recoverable at law may not be adequate compensation for nonperformance of the covenants of this Agreement. It is therefore agreed that in each instance where money damages are not an adequate remedy the Parties shall have the right to seek specific performance. - 5.2 SEVERABILITY. In case any one or more of the provisions of this Agreement shall for any reason be held to be illegal or invalid by a court of competent jurisdiction, it is the intention of each of the Parties hereto that such illegality or invalidity shall not affect any other provision hereof, but this Agreement shall be construed and enforced as if such illegal or invalid provision had not been contained herein. - 5.3 WAIVER. A failure to initiate action as to any breach shall not be deemed as a waiver of that right of action and all such uninitiated rights of action shall be cumulative. - 5.4 TERM OF AGREEMENT. This Agreement shall be in effect and shall constitute a binding obligation of the Parties hereto from and after its execution by the last Party to execute same and shall continue in effect for fifteen (15) years with a five (5) year extension upon written notice prior to 90 days of term end date by either Party. - 5.5 PERIODIC REVIEW OF PROVISIONS. The Parties shall hold periodic reviews, at least annually, of the provisions of this Agreement in order to provide for the changing needs of
1.3.a both Parties, and to ensure the Interconnections meet all applicable state and federal requirements, as they may be promulgated or amended. The Parties agree to negotiate diligently and in good faith to accommodate each other's needs and proposed amendments and to use all diligent and good faith efforts to enact by appropriate legislation such amendments as are agreed upon by both Parties to be appropriate. No such amendments to this Agreement shall become effective unless authorized by the respective Governing Authority of both Parties. However, nothing herein shall prevent either Party from proposing amendments to the other at any time during the term of this Agreement. - 5.6 RESOLUTION OF DISPUTES. Should there arise any issues or disputes related to this Agreement, the Parties will in good faith attempt to resolve such issues or disputes promptly and amicably and may by mutual agreement submit the same to non-binding mediation. - 5.7 DAMAGE OR DESTRUCTION OF FACILITIES. In the event of damage or destruction by fire or other casualty of the Interconnection, Fulton shall, with reasonable diligence and dispatch, repair, or rebuild, or otherwise make provision for restoring functionality to said facilities so as to restore them as nearly as possible to the condition which existed immediately prior to the damage or destruction, subject to such modifications as may be agreed to by the parties. Costs for the repair shall be borne by the owner of the components as described in Article 2.3. - 5.8 PERSONAL LIABILITY. No elected official, director, officer, or employee of either Party shall be charged personally or held contractually liable by or to the other Party under any terms or provisions of this Agreement or because of any breach thereof or because of its or their execution or attempted execution thereof.
1.3.a - 5.9 TIME OF ESSENCE. Time is of the essence for all terms of this Agreement. - 5.10 HEADINGS. The headings contained herein are for convenience and reference only and are not intended to define or limit the scope of any provisions of this Agreement. - 5.11 ASSISTANCE. Roswell and Fulton agree to provide each other with assistance in the form of plans and specifications, reports and projections, as may be necessary or appropriate for the efficient operation of the Interconnection. - 5.12 NUMBER OF ORIGINAL DOCUMENTS. It is agreed between the Parties that this Agreement shall be executed in two or more originals, each of which shall constitute one and the same document, and any one of which may be used for any purpose for which an original executed document may be used. - 5.13 ASSIGNMENT OF AGREEMENT. This Agreement shall inure to the benefit of and shall be binding upon the respective successors and assigns of the Parties to this Agreement; provided, however, that neither this Agreement nor any interest herein shall be transferred or assigned by any Party hereto except with the consent in writing of the other Party hereto which consent shall not be unreasonably withheld. No assignment or transfer of this Agreement without consent shall relieve a Party hereto of any obligation hereunder. - 5.14 INTERGOVERNMENTAL AGREEMENT. The parties hereto agree that this Agreement is an intergovernmental contract entered into pursuant to Article IX, Section III, Paragraph I of the Constitution of the State of Georgia of 1983. - 5.15 PRIOR AGREEMENTS. This Agreement supersedes any and all previous agreements between Fulton and Roswell concerning the same subject matter as this Agreement. - 5.16 DEFAULT. Failure of Roswell to pay Fulton any of the payments required under this Agreement when due or failure of either Party to comply with any covenant, term, or
obligation of this Agreement shall constitute a material default on the part of such Party. In any such event, and notwithstanding the requirements of Section 5.6, the non-defaulting Party may bring any suit, action, or proceeding in law or in equity, including but not limited to mandamus, injunction and/or action for specific performance, as may be necessary or appropriate to enforce any provision, covenant, term, or obligation of this Agreement against the other Party. 5.17 NOTICE. All notices pursuant to this Agreement shall be in writing and delivered in person or transmitted by certified mail, postage prepaid, or by registered overnight mail or delivery service, charges prepaid. All notices to Fulton shall be addressed as follows, unless otherwise directed in writing: County Manager Fulton County Government Center 141 Pryor Street, Suite 10061 Atlanta, Georgia 30303 With a copy to: Director, Fulton County Department of Public Works Fulton County Government Center 141 Pryor Street, Suite 6001 Atlanta, Georgia 30303 With a copy to: Office of the County Attorney Attn: County Attorney Fulton County Government Center 141 Pryor Street, Suite 4038 Atlanta, Georgia 30303 All notices to City of Roswell shall be addressed as follows, unless otherwise directed in writing: Mayor City of Roswell 38 Hill Street, Suite 215 Roswell, Georgia 30075
With a copy to the: Director, Department of Environmental/Public Works 38 Hill Street, Suite 235 Roswell, Georgia 30075 With a copy to the: City Administrator 38 Hill Street, Suite 115 Roswell, Georgia 30075 IN WITNESS WHEREOF, the duly authorized officials of Roswell and Fulton have caused the name of Roswell and the name of Fulton and the seals of said political subdivisions and the signatures of their duly authorized executive officers to be affixed hereto below: (Signatures on following pages) 1.3.a
ATTESTED: FULTON COUNTY, GEORGIA \\\\\\\\\\\\\\ (SEAL) Tonya R. Grier Clerk to the Commission APPROVED AS TO FORM: Office of the County Attorney Robert L. Pitts, Chairman Board of Commissioners APPROVED AS TO CONTENT: David Clark, Director Department of Public Works
ATTESTED: CITY OF Roswell, GEORGIA \\\\\\\\\\\\\\ (SEAL) Nancy Long City Clerk APPROVED AS TO FORM: Kurt M. Wilson Mayor APPROVED AS TO CONTENT: David Davidson City Attorney Brian Watson Director of Environmental / Public Works
EXHIBIT A.
1.3.a EXHIBIT B Table detailing the interconnection locations between the City of Roswell water distribution system and the Fulton County water distribution system, as well as the typical valve status (open or closed) and the category of interconnection (general supply or emergency). Interconnection Name Address Fulton Size (in) Roswell Size (in) Open/ Closed General/ Emergency Hwy 9 at Holcomb Bridge Rd 10489 Alpharetta Hwy 8 8 Closed Emergency 92120 Willeo Road 9120 Willeo Rd 8 8 Closed Emergency 575 Riverside Road 575 Riverside Rd 6 8 Closed Emergency 890 Warsaw Road 890 Warsaw Rd 8 8 Closed Emergency Grimes Bridge Road Grimes Bridge Rd 8 8 Closed Emergency Pine Grove Road 800 Pine Grove Rd 8 6 Closed Emergency Wavetree 0 Wavetree Dr 8 8 Closed Emergency
City of Roswell Mayor and Council AGENDA ITEM REPORT ID # - 10043 MEETING DATE: September 22, 2025 DEPARTMENT: Finance ITEM TYPE: Ordinance - Millage Rate Approval of an Ordinance to Adopt a Millage Rate of 4.949 for Tax Year 2025. (Second Reading) Item Summary: This Ordinance adopts a millage rate of 4.949 (4.049 General Fund Maintenance and Operations and 0.900 Bonded Debt Service). If the proposed millage rate is formally approved by Mayor and Council, Roswell's property tax rate will continue to be the lowest Maintenance and Operations (M&O) millage rate in 17 years. Committee or Staff Recommendation: On September 8, 2025, Mayor and Council approved the First Reading of the Ordinance. A required public hearing for the millage rate was held on September 15, 2025. Financial Impact: N/A Recommended Motion: Motion to approve an Ordinance to Adopt a Millage Rate of 4.949 for FY 2025 on Second Reading. Presented by: Bill Godshall, Chief Financial Officer Updated: 9/11/2025 5:54 PM A Page 1
STATE OF GEORGIA First Reading: September 8, 2025 COUNTY OF FULTON Second Reading: September 22, 2025 ORDINANCE TO ADOPT MILLAGE RATE WHEREAS, the Mayor and Council of the City of Roswell are the governing authority of the City of Roswell; and WHEREAS, the governing authority of the City of Roswell is authorized by State Law at O.C.G.A. § 32 to set the millage rate for the collection of ad valorem taxes; and WHEREAS, all required notices have been published or are scheduled to be published in a newspaper of general circulation throughout the jurisdiction pursuant to such statute: NOW, THEREFORE, the Mayor and Council of the City of Roswell wish to establish a millage rate of 4.949. The millage rate has a component of 4.049 mills for the general fund, operating and capital improvements budget, and a component of 0.900 mills for servicing bonded indebtedness. The above Ordinance was read and approved by the Mayor and Council of the City of Roswell, Georgia on the 8 th day of September and the 22nd day of September, 2025. Kurt M. Wilson, Mayor Attest: Nancy Saviano Long, City Clerk (Seal)
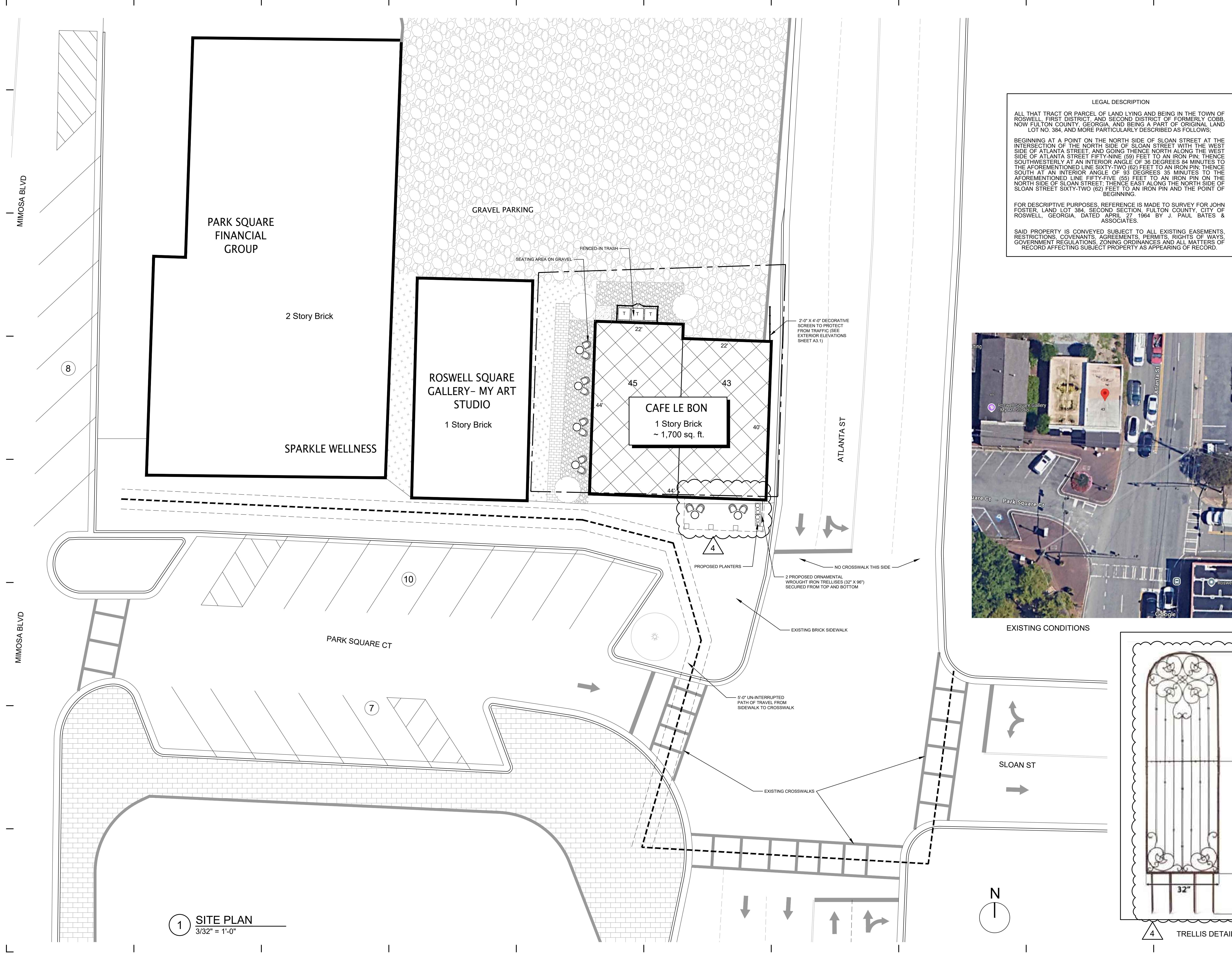
City of Roswell Mayor and Council AGENDA ITEM REPORT ID # - 9826 MEETING DATE: September 22, 2025 DEPARTMENT: Community Development ITEM TYPE: Approval Approval of a Sidewalk Café at 43/45 Park Square Court (20251723). Item Summary: This item is a proposed sidewalk cafe located in the right of way adjacent to 43/45 Park Square, the location of Cafe Le Bon. The cafe is located on the north side of Park Square, on the northwest corner of the intersection of Park Square and Atlanta Street. The cafe proposes to have two (2) tables with seating for 4 patrons in the sidewalk area located outside of and adjacent to the business. Committee or Staff Recommendation: On September 9, 2025, the Committees of Council recommended placing this item on the September 22, 2025 Mayor and Council Agenda. Financial Impact: N/A Recommended Motion: Motion to approve a Sidewalk Cafe at 43/45 Park Square Court (20251723). Presented by: Jeannie Peyton, Director of Planning and Zoning
Ο 4 RENOV INTERIOR BON AFE $\mathbf{O}$ $\mathbf{O}$ Ζ $\mathbf{O}$ S S QUARE $\sim$ 300 HITEC- $\triangleleft$ Ū S ARK _ SWEL ARC 45 К О 4 CNN Not X 3 $\forall$ THIS DRAWING, ITS CONTENTS & ALL PRINTS OF IT ARE PROPERTY OF CNNA, INC. DBA CNNA ARCHITECTS, INC. I PRINTS ARE TO BE RETURNED TO CNNA UPON COMPLETION OF USE FOR WHICH THEY WERE ISSUED REPRODUCTION OF THIS DRAWING WITHOUT THE WRITEN CONSENT OF CNNA ARCHITECTS IS PROHIBITED COPYRIGHT@ 2013 Print Re cord 01/03/2025 HPC SUBMITTAL 01/29/2025 HPC REV 1 01/27/2025 SIDEWALK CAFE APPLICATION 02/21/2025 BUILDING PERMIT APPLICATION 06/13/2025 SIDEWALK CAFE CITY COMMENTS Revisions 1/29/2025 HPC COMMENTS 04/02/2025 PLAN REVIEW COMMENTS ∕ 3 06/13/2025 SIDEWALK CAFE CITY COMMENT 4 A $\land$ $\mathbb{A}$ $\triangle$ Project No.: A24515 Project Date: NOV. 1, 2024 Cadd File No: Drawn By: JHO Checked By: - Scale: 3/32" = 1'-0" Sheet Title: SITE PLAN Sheet No. $\cdots$ TRELLIS DETAILS LEGAL DESCRIPTION
By City of Roswell Planning & Zoning at 11:23 am, Apr 22, 2025 Munis #: 2025172 Parcel ID: 12 -019 Sidewalk Café License Application To All Sidewalk Café License Applicants: - 1. Please fill out the attached License Application completely and return to the Community Development Office, 38 Hill Street, Suite G 30, Roswell, GA 30075. To speak with the License Registration Specialist, contact the Community Development Department at 3780. - 2. Provide copies of required documentation at the time the application is filed. Applicant must provide the following: a. All site plans (including architectural plans) for sidewalk cafes shall include a sketch showing existing interior floor plans if appropriate; b. Exterior floor plans if applicable; - c. Building elevations; - d. Setbacks; - e. Types of landscaping/ground covering; - f. Lighting; - g. Location of tables, chairs and other furniture; - h. Pedestrian ingress and egress (clear path) - i. All other information deemed necessary for processing of application; - j. Photographs, drawings, or manufacturers' brochures describing the appearance of the proposed tables, chairs, umbrellas or other objects related to the sidewalk café. Any missing, incomplete or false information or failure to present documentation will result in the refusal of this application. - 3. A fee of \$300.00 new application, or \$100.00 renewal with changes, or \$50.00 annual renewal for the Sidewalk Café License, must be submitted with the application. - 4. Before a license can be issued, the applicant must comply with all standards and criteria (Section 9.7.15), liability and insurance requirements and must be approved by Mayor and City Council. Packet Pg. 43
Sidev valk Cafe License Appli cation Cafe le Bon Name of Business with Sidewalk Cafe (incl ude d/b/a if applicable) S 45 Park Square Ct Roswell, GA 3007 City State Zip 75 S Description of location for the utilization of a Ш Z ted in front of main entrance and un demeath the existing covered and the second second second second second second second second second second second second second second second rdered and picked up in principle bu S N ice will be provided. Building permit • â OwnershipOwnershipProprietorship;Partnership;Out-of-stateCorporation $\frac
{No. of tables} \qquad \frac
{No. of Chairs}$ undetermined: awaiting building permit submittal Date / approval. Estimated Spring/ Summer 2025 Beginning of sidewalk cafe within City of Roswell œ ш Margo Shaib Owner Name (Company and/or Individual - - Please print) NM 4816 Ashford Lane Dunwoody GA, 3033 38 0 Mailing Address (if other than above) City State Zip S NOT YET REGISTERED 09 / 24 / 1981 S Business Phone Date of Birth Ш 5128 Z Cell or Home Phone S N MargoShaib@hotmail.com E-mail End ID No (Employee Identification No B Fax Phone E-mail Fed. ID No./Employee Identification No. ioner to the City of Roswell for the purpose om disclosure under Article 4, Chapter 18, Title 50 of the Official Code of Georgia. T I V in is complete. I have answered all A < by acknowledge that I have read and fe in the City of Roswell. Any false 0 statement on this application automa Attachment: Sidewalk Cafe License Permit Application_01.27.2025 (20251723 - 43/45 Park Square Court - Sidewalk Café)
If the business requesting the license home addresses, date of birth and drive a Corporation, a Limited Liability Corpo er's license information for ration or a Limited Liability each indivi Partnershi dual owr p, then li ner. I st th f the bu e name siness is and business address of the registered age CEO, or managing partner. and the nam e and tit le of the pre sident, Margo Shaib Owner Title (President) 4816 Ashford Lane, Dunwoody Home Address un, 00000 5128 Home Phone Number 09 / 24 / 1981 Date of Birth Name Title (Vice President) Home Address Home Phone Number • Date of Birth Name Title . . Home Address Home Phone Number Date of Birth 1.) Proof of insurance Yes X No NC T YET APPLIED F Coverage: Company: Expiration Date: 2.) Business registration verification: $\mathbf{X}$ Yes No Registration No: 24036056 3.) Fulton County Health Department certif ication - copy Yes X No NC OT YET APPLIED F 4.) Liquor License - copy Yes X No Julle Ato / Owner's Represer ntative Date: _ 01 / 27 / 2025 Applicant Signature: Business Owner or Owner's Representative/ little Packet Pg. 45
Sidewalk Café Occupancy Fire Ins pection Form Emergency s ervices cor ntact information This form must be filled out completely. Cafe le Bon Name of Business 45 Park Square Ct Business Street Address Suite/Apt. # Roswell, GA 30075 Business Street Address Suite/Apt. # City State Zip Margo Shaib Name of Business Owner (Company an d/or Individual – Please pri nt) the second second second second second second second second second second second second second second second se 9944 ergency Phone MargoShaib@hotmail.com E-mail Cafe / Bakery Type of Business (Explain) x Dimensions Hazardous or flammable materials store d on site? 🛛 🖾 No 🗔 Ye es If yes, please list: In case of emergency after hours, please con tact: Margo Shaib First Contact 4816 Ashford Lane Dunwoody GA, 30338 8 Home Street Address Suite/Apt. # 770 000 5100 City State Zip IN/A Home Phone 5128 Cell Phone ***************** Walid Shaib Second Contact 4816 Ashford Lane Dunwoody GA, 30338 Home Street Address Suite/Apt. # City State Zip N/A 9944 Home Phone Cell Phone Margo Shaib Maryo Shalo Name of Building / Property Owne r 1997 Name of Building / Property Owne r Dunwoody GA , 30338 Dunwoody GA City State Zip , 30338 Name of Building / Property Owne 4816 Ashford Lane 5128 City State Zip , 30338 o@hotmail.com Name of Building / Property Owner 4816 Ashford Lane Home Street Address Suite/Apt. # City State Zip To be completed by the Fire Department Date Last Inspection Approved: \\ / \\ Sq. Ft. \ The Roswell Fire Department recommends that a License for a Sidewalk Café be issued for the business listed at the address as stated above. Date: \\ / \\ Approved by Fire Inspector - Signature & Title Packet Pg. 46
Sidewalk Café License Fee Schedule Application f or Sidewalk Café Licens e Registration tee \$ 300.00 Changes or a additions to original license Э \$ 100.00 Annual rene ewal with no changes \$ 50.00 Change of N lame and Address No Fee Fees are payable to the City of Roswell. Contact Us For general questions regarding the application process, or to schedule an application review for a sidewalk café license contact between the hours of 8:00 a.m. to 5:00 p.m.: City of Roswell Community Development Department 38 Hill Street, Suite G – 30 Roswell, GA 30075 Phone: 3780 Web Site: www.roswellgov.com 2.b
Petition Number SC 20251723 Hearing & Meeting Dates Mayor & Council – 9/22/2025 Committee – 9/9/2025 Applicant/Owner Representative Margo Shaib Joelle Osta 4816 Ashford Lane, Dunwoody, GA 30338 Property Information 43/45 Park Square Court Land Lot 384, 12 nd District Zoning – DS (Downtown Shopfront) 2040 Comprehensive Plan Character Area – Historic Area/Downtown Request The applicants are requesting a sidewalk café license for 43/45 Park Square Court. The applicants are opening a bakery and restaurant at the location called "Café le Bon." Staff Recommendations Staff is recommending approval with conditions for the request of a sidewalk café license. If Mayor and Council choose to approve the above request, Staff recommends the following conditions: 1. The sidewalk café shall be developed in accordance with the site plan received by the City on July 29, 2025; 2. That the barriers and furniture must be approved by Staff through an HPC administrative application before installation; and, 3. That all application fees for the sidewalk café application be paid in full prior to approval of any HPC administrative application.
Prepared by the City of Roswell Planning & Zoning Division for the Mayor & City Council Meeting on September 10, 2025. Page 2 of 8
2.c Prepared by the City of Roswell Planning & Zoning Division for the Mayor & City Council Meeting on September 10, 2025. Page 3 of 8
Page 4 of 8
Background The property is zoned DS (Downtown Shopfront) and contains a two abutting singlestory shopfronts, which are approximately 1,700 square feet, that are being renovated to have a single connected interior. The property is approximately 0.08 acres and has two frontages, Atlanta Street and Park Square Court. Site Plan Analysis Applicants proposed sidewalk café includes two (2) tables, each with two (2) chairs, placed under an existing awning. Between the tables and Atlanta Street is a planter and wrought iron trellises, which will limit traffic noise for patrons and better prevent negative traffic-pedestrian interactions along Atlanta Street. These plans have decreased from the original submitted proposal, which included eight (8) tables and twenty-four (24) chairs, and an extended trellis separating the sidewalk café from Atlanta Street. Staff requested applicants reduce the number of tables and chairs based on feedback from the Roswell Department of Transportation (RDOT). RDOT was concerned for the general safety of patrons, who might be sitting too close to Atlanta Street. RDOT has approved these revised plans from a traffic and pedestrian safety perspective. Furniture Analysis The furniture being placed on the sidewalk café must go back through an HPC administrative application after approval for the sidewalk café is granted. The applicants have already received approval for furniture to be placed on the interior side of the building, outside of the public right-of-way. These tables and chairs are Parisian style bistro chairs and tables.
Prepared by the City of Roswell Planning & Zoning Division for the Mayor & City Council Meeting on September 10, 2025. Page 6 of 8
2.c Requirements of sidewalk cafés UDC 9.7.15.B.1 – Outdoor dining areas in the Historic Area must be approved by HPC As the code does not specify, the Staff's current procedure is to process such applications as HPC administrative applications. Transportation requires that the sidewalk café license be received first prior to this application. The applicants have already received approval for outdoor dining furniture out of the public right-of-way (HPC 20250023) and have stated a willingness to apply for an additional HPC administrative application to approve the furniture. UDC 9.7.15.B.2.b – A sidewalk café must abut the primary structure where the restaurant is located in, and that at least 5 feet of pedestrian clearance is given for the sidewalk. The plan includes two chairs directly abutting the restaurant's front façade and leaves far more than 5 feet of pedestrian clearance between the front of the sidewalk café and the curb of Park Square Court. UDC 9.7.15.B.2.c – Food preparation and kitchen equipment take place entirely inside the building. Plans provided by applicants only include tables, chairs, planters, and a trellis. No kitchen equipment is proposed within the plans. UDC 9.7.15.B.2.d – Private trash cans not be in the public right-of-way and that only public trash cans may be setup within the sidewalk café. No trash cans are proposed within the plans. UDC 9.7.15.B.2.e – No extension cords may be placed across the sidewalk and no television may be placed within the sidewalk café. No portion of the sidewalk café includes electrically powered equipment or televisions. UDC 9.7.15.B.2.f – Businesses are not permitted to store or dispense alcoholic beverages within the public right-of-way. This does not restrict the serving of alcohol, but such beverages must be dispensed from inside the building. No storage or dispenser that can be used for storage or dispensing of alcohol is being proposed for the sidewalk café.
Staff Comments Stormwater: Reviewer: Krista Thomas Approved Landscape/Arborist: N/A Transportation: Reviewer: Serge Osse - 6428(direct) 6420(Main) sosse@roswellgov.com RDOT recommends approval. (The revised plans address the previous comments). Building: N/A Engineering: N/A GIS: N/A Planning & Zoning: Reviewer: Shea Dixon, Planner II, 6437, sdixon@roswellgov.com, DS - Downtown Shopfront zoning - Restaurant is an allowed use in DS This application, as submitted, is approved. No deficiency letter is required for this sidewalk cafe license application. No concerns found upon third review of this application. 2.c
City of Roswell Mayor and Council AGENDA ITEM REPORT ID # - 10038 MEETING DATE: September 22, 2025 DEPARTMENT: Community Development ITEM TYPE: Resolution Approval of a Resolution to adopt the annual update to the Community Work Program (CWP) and Community Improvement Element (CIE) covering the five year period from 2030. Item Summary: The CIE is a list of projects from public safety (police and fire), Recreation and Parks and Transportation. The CWP is a program list of projects and activities completed by staff based on the goals of the Comprehensive Plan. These projects are eligible to use impact fees to help pay for part of the costs. Cities that collect impact fees are required each year to submit the CIE and CWP to the ARC (Atlanta Regional Commission) and DCA (Department of Community Affairs) in order to continue to maintain our QLG (Qualified Local Government) status. This update has been reviewed by the ARC and the DCA and found to be in compliance with the minimum standards. Committee or Staff Recommendation: On September 9, 2025, the Committees of Council recommended placing this item on the September 22, 2025 Mayor and Council Agenda. Financial Impact: N/A Recommended Motion: Motion to approve a Resolution to adopt the annual update to the Community Work Program (CWP) and Community Improvement Element (CIE) covering the five year period from 2030. Presented by: Jeannie Peyton, Director of Planning and Zoning
RESOLUTION FOR ADOPTION OF THE ANNUAL UPDATE TO THE COMMUNITY WORK PROGRAM AND CAPITAL IMPROVEMENT ELEMENT COVERING THE FIVE YEAR PERIOD FROM 2030 WHEREAS, to retain its "Qualified Local Government Status" pursuant to the Georgia Planning Act of 1989, the City of Roswell must remain in compliance with the requirements of the State of Georgia's Minimum Planning Standards and Procedures for Local Comprehensive Planning; and WHEREAS, the state's Minimum Planning Standards and Procedures require that the city update the Short Term Work Program and Capital Improvement Element to remain eligible to charge development impact fees: and WHEREAS, the Mayor and Council has considered this matter at a public hearing on July 14, 2025 for transmittal; and WHEREAS, appropriate notice has been provided and public hearings have been held that meet and exceed the minimum procedural requirements for preparing and amending comprehensive plans; and WHEREAS, the Annual Update to the Community Work Program and Capital Improvement Element have been reviewed by the Atlanta Regional Commission and the Department of Community Affairs and found to be in compliance with the minimum standards; and WHEREAS, a Public Hearing was held by the Mayor and City Council on September 22, 2025 in the City Council Chambers, 38 Hill Street, Roswell, Georgia; BE IT THEREFORE RESOLVED by the Mayor and City Council of the City of Roswell that the Annual Update to the Community Work Program and Capital Improvement Element covering the five-year period from 2026 to 2030 is hereby adopted. BE IT FURTHER RESOLVED that a copy of this resolution shall be submitted to the Atlanta Regional Commission. The above resolution was read and approved by the Mayor and Council of the City of Roswell on September 22, 2025. Attest: Kurt M. Wilson, Mayor Nancy Saviano Long, City Clerk (Seal)
FW: City of Roswell CIE Update: Approved From Donald Shockey Date Tue 8/26/2025 10:46 AM - To Angela Rambeau - Cc Andrew Smith EXTERNAL EMAIL Hi Angela, Per the below, the DCA has approved the City's 2025 CIE Update. The regional review period has ended and no comments were received. The City can now proceed with adopting the Update. Once that is done, please provide the adopted version and resolution and we'll follow up with the DCA on the QLG renewal. Best, Donald Shockey AICP-CUD, LEED GA, CNU-A Senior Planner Community Development (O) 470.378.1531 DShockey@atlantaregional.org Atlanta Regional Commission 229 Peachtree Street, NE Suite 100 Atlanta, Georgia 30303 CONFIDENTIALITY NOTICE: This message and all attachments, sent from DShockey@atlantaregional.org to arambeau@roswellgov.com on Tue Aug 26 10:46:14 EDT 2025, are covered by the Electronic Communications Privacy Act, 18 U.S.C. 2521 and may contain legally privileged, confidential, or otherwise protected by law information intended solely for the addressee. If you are not the intended recipient arambeau@roswellgov.com you should immediately stop reading this message and delete it from your system. Any unauthorized reading, distribution, copying, or other use of this message or its attachments is strictly prohibited. Any views or opinions presented in this email are solely those of the author. If you received this message in error, please notify the sender and delete the message immediately.
From: Juli M. Yoder Sent: Tuesday, August 26, 2025 9:45 AM To: Andrew Smith Cc: Planning ; Donald Shockey Subject: City of Roswell CIE Update: Approved Andrew: Our staff has reviewed the Annual Capital Improvement Element (CIE) Update for the City of Roswell and finds that it adequately addresses applicable requirements. The next step is for the local government to adopt the CIE Update. As soon as your office provides written notice that the CIE Update has been adopted and provides DCA with a digital copy of the final adopted version of this document, we will notify the local government that its Qualified Local Government status has been extended. If you have any questions, please contact us at 5279. Thanks, Juli M. Yoder, AICP Principal Planner Community & Regional Planning Direct: 6860 dca.georgia.gov All links scanned by ZixProtect Link Protection. You will be redirected to the ZixProtect Link Center upon clicking any link.
Project Description Detail Description Project Start Date Project Completed Date Estimated Project Cost Portion Chargeable to Impact Fees Sources of Funds (& Share) Responsible Party Historic Gateway (SR 9 from River to SR 120) TSPLOST Add lane, SW ,MUP and two Roundabout 7/16 12/30 71,380,774 20% GF, IF(Trans), Federal Funds GO, TAD, TSPLOST (1) Department of Transportation Big Creek Parkway TSPLOST 2 Iane Bridge w/ SW & MUP 7/16 6/28 \$79,448,300 20% GF, IF(Trans), Federal Funds, GO, TAD, TSPLOST (1), Other Department of Transportation SR-9 Underpass from City Hall to Canton Street area and Heart of Roswell Park Construct underpass 7/18 6/27 \$7,000,000 20% GF Department of Transportation SR 9 at Magnolia/Canton Reconstruct 5 way Intersection 7/16 6/29 \$2,500,000 50% GF, IF (Trans), GO, TAD Department of Transportation Riverside Road Complete Street Complete Street 7/16 6/28 \$8,564,650 50% GF, IF(Trans), TSPLOST (2) Department of Transportation SR 9/120 at Oxbo Road / Elm Street / Pleasant Hill TSPLOST Retaining Wall(s) 7/17 6/26 \$3,000,000 50% GF, IF (Trans), GO, TAD, TSPLOST (1) Department of Transportation SR 400 / SR 140 Holcomb Bridge Road Interchange Area improvements Interchange, bridge, turn lane, sidewalk, MU path 7/20 6/30 \$15,000,000 20% GF, IF(Trans), TSPLOST (1) Department of Transportation Grimes Bridge Road Improvement Corridor Improvements 7/21 6/30 \$5,500,000 20% GF, IF(Trans), TSPLOST (2) Department of Transportation Dogwood Road MU Path Riverside to Grimes Bridge Sidewalk projects 7/20 6/27 \$2,500,000 20% GF, IF(Trans), TSPLOST 2 Department of Transportation Hardscrabble Phase 2 Multi-Use Path MUP 7/17 6/25 \$2,000,000 20% GF, IF(Trans), Department of Transportation Sidewalk Connectivity Sidewalk projects 7/16 6/26 \$7,000,000 50% GF, IF (Trans),, Federal Funds, GO Department of Transportation Funding Source Abbrevia Bond Referendum Community Development I Donations Governor's Discretionary F Block Grants IF Impa L&WCF Land eral Obligation B act Fees (Trans, d and Water Con al Development F R&P, PW, PS) servation Funds P/P RAF TAD TR Public/Private Part Recreation Assista Tax Allocation Dist Federal/GDOT Tra nce Program Fund
TSPLOST, TSPLOST (2), Traffic Calming and pedestrian safety Corridor Improvements 7/22 6/26 \$2,000,000 80% GF, IF (Trans),, TSPLOST (2), Department of Transportation Traffic Signal Upgrade Signal Improvement 7/17 6/26 \$4,000,000 20% GF, IF (Trans),, GO Department of Transportation Acquire Right-Of-Way Acquire ROW 7/19 6/26 \$3,000,000 20% GF, IF (Trans), GO Department of Transportation Sun Valley Road – Old Ellis Road Connector (Phase 2) 2 lane Road w/ MUP 6/16 6/27 \$16,700,000 20% GF, IF (Trans),, Other, GO, TAD, TSPLOST (2), Department of Transportation Holcomb Bridge Road Multi- Use Trail from Old Alabama Road to Gwinnett County MUP 7/25 6/28 \$7,400,000 20% GF, IF (Trans),, Federal Funds GO, TSPLOST (2), Department of Transportation Oak Street Streetscape, Phase 2 MUP w/ Street Trees 7/25 6/27 \$2,250,000 50% GF, IF (Trans),, Federal Funds GO, TAD Department of Transportation SR 9/120 at Oak Street Intersection 7/25 6/27 \$270,000 50% GF, IF (Trans),, GO, TAD Department of Transportation Houze Road (SR 140) at Mansell Road Intersection 7/25 6/27 \$1,200,000 20% GF, IF (Trans),, Federal Funds GO Department of Transportation Green Street and Cherry Way Improvements Widen reconstruct 7/23 6/27 \$6,500,000 80% GF, IF (Trans),, TAD Department of Transportation Plumtree Street Improvements Widen reconstruct 7/20 6/26 \$1,000,00 75% GF, IF (Trans),, TAD Department of Transportation Jones Road Complete Street Reconstruct Road w/ SW & MUP Intersection 7/18 6/27 \$4,400,000 50% GF, IF(Trans), Federal Funds, GO Department of Transportation Norcross Street Bridge Replacement New Bridge w/SW 7/23 6/28 \$4,200,000 20% GF, IF(Trans), Federal Funds, TSPLOST (2), GO Department of Transportation Oxbo Road Corridor Improvements Minor widening, or bike lanes, add MUP 7/23 6/27 6,000,000 50% GF, IF(Trans), Federal Funds TAD Department of Transportation Bond Referendum Community Development Donations Funding Source Abbreviations: Bond Referendum Community Development Block Grants Donations Governor's Discretionary Fund 3ond R&P, PW, PS) iservation Funds Fund ion P/P RAF TAD TR TSPLOS Public/Private Partr Recreation Assistar Tax Allocation Distr Federal/GDOT Trans Trans. Special Opti nce Program Fund ict nsportation Funding Attachment: 2025 CIE (2025 Community Work Program (CWP)/ Community Improvement Element (CIE)**
Capital Improvement Element, FY2026 to FY2030 (Impact Fee Eligible Projects) All Service Areas are City Wide Mansell Road Extension New 2 lane Road w/SW, or Bike Lanes 7/25 6/29 \$8,600,000 20% GF, IF(Trans), TAD Department of Transportation Pine Grove Corridor Improvements Corridor Improvements, Intersection Imp 7/20 6/28 \$20,800,000 20% GF, IF(Trans), TSPLOST (2), Other Department of Transportation Dogwood Overpass at Holcomb Bridge New Bridge over HBR 7/26 6/30 \$20,000,000 20% GF, IF(Trans), Federal Funds, GO, TAD Department of Transportation Mansell Connector (Big Creek 3) 2 Lane Rd SW or MUP 7/25 6/29 \$15,000,000 20% IF(Trans), GF, Other Department of Transportation Oxbo Bridge Replacement Replace / 2 Lane Bridge 7/23 6/28 \$4,050,000 20% GF, IF(Trans), TR, Federal Funds, Other, GO Department of Transportation Jones Road Bridge Replacement Replace / 2 Lane Bridge 7/23 6/28 \$4,300,000 20% GF, IF(Trans), TR, Federal Funds, Other, GO Department of Transportation Old Holcomb Bridge - Bridge Replacement Replace / 2 Lane Bridge 7/23 6/29 \$5,450,000 20% GF, IF(Trans), TR, Federal Funds, Other, GO Department of Transportation Charles Place Bridge Replacement Replace / 2 Lane Bridge 7/23 6/28 \$3,500,000 20% GF, IF(Trans), TR, Federal Funds, Other, GO Department of Transportation Hembree Rd at Crabapple Road Intersection 7/24 6/28 \$4,545,000 50% GF, IF (Trans),, GO, TAD Department of Transportation Hardscrabble Rd at King Rd Intersection 7/24 6/28 \$4,075,000 50% GF, IF (Trans),, GO, TAD Department of Transportation Commerce Parkway corridor and bike/ped improvements Intersection improvements, Multi-use path or sidewalk improvements 7/25 6/28 \$1,000,000 50% GF, IF (Trans), GO, TAD Department of Transportation Houze Road at SR9 intersection Intersection improvements Multi-use trail or sidewalk improvements 7/25 6/28 \$1,000,000 50% GF, IF (Trans), GO, TAD Department o Transportation Legend to Funding Source Abbreviations: BR Bond Referendum CDBG Community Development Block Grants D Donations GDF Governor's Discretionary Fund GF General Fund General Obligation Bond Impact Fees (Trans, R&P, PW, PS) L&WCF Land and Water Conservation Funds Local Development Fund Line Item Appropriation P/P Public/Private Partnership RAF TAD Tax Allocation District TR TSPLOST UF User Fee Recreation Assistance Program Fund Federal/GDOT Transportation Funding Trans. Special Option Local Sales Tax Notes * These projects are currently on the constrained list of eligible projects allowed to use Impact Fees Funds. GO LDF LIA IF Page 3 of 6 Attachment: 2025 CIE(2025 Community Work Program (CWP)/ Community Improvement Element (CIE)
Norcross St at Frasier Street Intersection 7/25 6/28 \$1,750,000 50% GF, IF (Trans),, GO, TAD Department of Transportation Holcomb Bridge Rd at Old Alabama Road Intersection 7/25 6/30 \$14,000,000 50% GF, IF (Trans),, GO, TAD Department of Transportation Holcomb Bridge Rd at Grimes Bridge Rd Intersection 7/25 6/28 \$1,500,000 50% GF, IF (Trans),, GO, TAD Department of Transportation Alpharetta Hwy at Hembree Rd Intersection 7/25 6/28 \$1,500,000 50% GF, IF (Trans),, GO, TAD Department of Transportation Houze Rd at Houze Way Intersection 7/25 6/28 \$1,500,000 50% GF, IF (Trans),, GO, TAD Department of Transportation Future Purchase of Parkland/Greenspace Additional City Property 8/25 8/30 \$16,000,000 20% GO IF( R&P) Department of Rec & Parks City Owned Parks and Properties Development 8/25 6/30 \$36,000,000 80% GO, IF (R&P), D, P/P Department of Rec & Parks Waller Park/ Groveway Community Park Development 8/25 6/30 \$5,000,000 50% IF (R&P), GF, GO Department of Rec & Parks Old Mill Park Trail Development 8/25 9/30 \$500,000 50% GF 50%, IF (R&P) Department of Rec & Parks Athletic Facilities and Field Improvements Development 8/25 6/28 \$12,000,000 80% IF(R&P), GO Department of Rec & Parks Crabapple Center Development 6/25 4/28 \$6,000,000 70% IF (R&P), GF, D, GO Department of Rec & Parks City Hall Trails Trail 2/25 2/27 \$3,000,000 30% IF (R&P), GF, GO Department of Rec & Parks Edwin and Nelda Spruill Park Development 12/25 12/29 \$60,000,000 80% IF (R&P), GF, D, GO Department of Rec & Parks Founder's Park Development 5/25 7/26 \$5,500,000 50% IF (R&P), GF Department of Rec & Parks Pond Repairs at Roswell Area Park Lake Development 7/25 7/26 2,700,000 70% IF, GF 20%, GO Department of Rec & Parks BR Bond Referendum CDBG Community Development Block Grants D Donations GDF Governor's Discretionary Fund GF General Fund General Obligation Bond Impact Fees (Trans, R&P, PW, PS) VCF Land and Water Conservation Funds Local Development Fund Line Item Appropriation
Aquatic Facilities Construction 8/25 8/29 \$6,000,000 50% IF, GO, Department of Rec & Parks Old Mill Machine Shop Construction 12/25 12/28 \$750,000 70% IF, GO, GF Department of Rec & Parks Replacement for Station 22 Construction 10/24 6/26 \$6,919,416 50% IF(PS),GO Fire Department Replacement for Station 23 Construction 10/24 6/26 \$4,532,109 50% IF,GF,-GO Fire Department Replacement for Station 27 Construction 10/24 5/28 \$5,365,125 50% IF, GO Fire Department New Station 28 Development 10/24 10/28 \$5,365,125 50% IF, GO Fire Department New Public Safety Facility/ Headquarters Construction 10/24 6/28 \$22,936,725 50% IF, GO Fire Department New 911 call center Development 3/24 5/26 \$5,200,000 20% IF, GO Police Department Fire Engine 23 Development 2026 2029 \$1,215,760 35% GF,IF Fire Department Fire Engine 27 Development 2026 2029 \$1,215,760 35% GF,IF Fire Department Air Trailers for SCBA x3 Development 2026 2027 \$450,000 50% GF,IF Fire Department Fire Rescue Boat Development 2027 2030 \$125,465 50% GF,IF Fire Department Fire Engine 24 Development 2027 2030 \$1,264,390 35% GF,IF Fire Department Fire Ladder Truck 24 Development 2028 2031 \$2,924,646 20% GF,IF Fire Department Heavy Rescue Development 2030 3033 \$3,283,297 20% GF,IF Fire Department Utility Vehicle Development 2025 2030 \$30,000 40% GF,IF Police Department General Vehicle Development 2025 2030 \$175,000 20% GF,IF Police Department BR Bond Referendum GO General Obligation Bond P/P Public/Private Partnership CDBG Community Development Block Grants IF Impact Fees (Trans, R&P, PW, PS) RAF Recreation Assistance Program Fund D Donations L&WCF Land and Water Conservation Funds TAD Tax Allocation District GDF Governor's Discretionary Fund LDF Local Development Fund TR Federal/GDOT Transportation Funding GF General Fund LIA Line Item Appropriation TSPLOST Trans. Special Option Local Sales Tax 1.00
General Vehicle Development 2025 2030 \$48,000 40% GF,IF Police Department General Vehicle Development 2025 2030 \$55,000 30% GF,IF Police Department Heavy Vehicle Development 2025 2030 \$1,000,000 20% GF,IF Police Department General Vehicle Development 2026 2030 \$90,000 30% GF,IF Police Department General Vehicle Development 2026 2030 \$69,000 40% GF,IF Police Department General Vehicle Development 2027 2030 \$90,000 30% GF,IF Police Department General Vehicle Development 2027 2030 \$85,000 30% GF,IF Police Department General Vehicle Development 2028 2030 \$69,000 40% GF,IF Police Department BR Bond Referendum CDBG Community Development Block Grants D Donations GDF Governor's Discretionary Fund GF General Fund
FY2026 to FY 2030 Item Description 2026 2027 2028 2029 2030 Total Cost (if any) Source of Funds Impact Fee Eligible Responsible Department or Agency POPUL 1 Ligible P.1 Monitor regional and U.S. Census Bureau estimates of the City's population V √ 1 V V Not applicable GF Community Development P.2 Monitor and publicize any adult literacy programs available to Roswell's residents $\checkmark$ ~ ~ V V Not applicabl e GF Community Relations Р.З Update population and functional population projections as needed to support annual updates of the Capital Improvement Element V V V V V Staff time GF Community Development HOUSING н.1 Maintain data on issuance of housing starts (building permits) for estimates of population and housing V V V V V Staff time GF Community Development, Building Division Н.2 Identify any concentrations of substandard housing units and use community development funds to help fund improvements V V V V V Staff time GF Community Development; Admin н.з Continue to enforce the standard housing code ~ ~ √ ~ V Staff time GF Community Development H.4 Maintain the City's public housing program and determine appropriate future activities/programs V V V V V Not applicable Federal (HUD), CDBG Housing Authority Н.5 Monitor available state and federal housing programs and disseminate information to individuals and groups in need of such program resources ~ V V V V Staff time Federal(HUD) Roswell Housing Authority ECON OMIC D EVELO PMENT PROPERTY AND ED.1 Provide information on available office space to all potential users or reference sources. V V V V V Staff time GF Economic Devt. Department ED.2 Work with other City departments to promote economic growth that will result in increasing the tax base $\checkmark$ V V V V Staff time GF Economic Devt. Department ED.3 Continue to support quality of life enhancements that make the area attractive to corporations V V V V V Staff time GF All Depts. ED.4 Collaborate with the Convention & Visitors Bureau and others on marketing ~ V ~ V V Staff time GF Economic Devt. Department, Community Relations ED.5 Complete signage to key attractions throughout the City ~ V V V Staff time GF Transportation Department ED.6 Guide small entrepreneurs to available forms of resources and assistance √ V 1 V V Staff time GF Economic Devt. Department; ED.7 Communicate with businesses via electronic newsletter to keep them informed of developments in the City V V V V V Staff time GF Economic Devt. Department ED.8 Stay involved in regional discussions $\checkmark$ $\checkmark$ $\checkmark$ √ $\checkmark$ Staff time GF Economic Devt. Department ED.9 Continue to effectively communicate the development process; advocate for streamlining where opportunities exist V V V V V Staff time GF Community Development ED.10 Continue to enhance the first line of marketing to new and expanding businesses, the Economic Development website. ~ V V V V Staff time GF Economic Devt. Department ED.11 Provide free workshops to Roswell businesses on topics of their choice √ V V V V Staff time GF Economic Devt. Department ED.12 To solicit, plan and produce events in conjunction with organizations to offer a wide variety of affordable entertainment and leisure activities in a safe and attractive environment. ~ V ~ V V \$15,000 GF Rec & Parks; Special Events
17.1 14/ Implement recommendations of revitalization study and plan for the Holcomb Bridge Road corridor west of GA 400 V V V V V V V V V V V V V V V V V V V V V V V V V V V V V V V V V V V V V V V V V V V V V V V V V V V V V V V V V V V V V V V V V V V V V V V V V V V V V V V V V V V V V V V V V V V V V V V V V V V V V V V V V V V V V V V V< tem Description 2026 2027 2028 2029 2030 Fee R EDEVEL OPMEN T .1 V V V V V GF 2 study and plan for the Holcomb Bridge Road V V V V ~ GF Yes City (various departments) 3 Support Downtown Development Authority, if needed V V V V V GF Mayor and Council; City Administrator 4 Seek funding for implementation of redevelopment studies, plans, and projects V V ~ V V TBD GF Yes Community Development; Mayor and Council; Economic Devt. Dept 5 Assist where possible in improving access, ingress, and egress to outmoded retail centers and upgrade surrounding road networks V V V ~ ~ TBD GF Community Development; Transportation 6 Promote existing retail space and the redevelopment of vacant retail space √ ~ V V V Staff time GF Economic Devt. Department; COLUMN STREET HISTO RIC PR ESERVA TION Develop a citywide GIS database of all identified cultural resources; update the database periodically as needed V V V V V Staff time GF GIS; Planning and Zoning P.2 Expand the existing National Register Historic District to include adjacent eligible commercial and residential areas V V 1 Not applicable GF HPC: Planning and Zoning P.3 Pursue National Historic Landmarks designations, as appropriate V √ V V Not applicable GF R&P/H&CA P.4 Enlarge the emphasis of programs and publications from antebellum resources to include resources from all periods of the City's history. V V V V V Staff time and volunteers GF R&P P.3 Pursue National Historic Landmarks designations, as appropriate 1 1 V V Not applicable GF R&P/H&CA P.4 Enlarge the emphasis of programs and publications from antebellum resources to include resources from all periods of the City's history. V V V V V Staff time and volunteers GF R&P P.5 Work with the Roswell CVB to develop ways to promote the City's historic sites through the CVB's already established channels. Meet regularly with all associated local agencies and organizations to discuss promotional programs and to keep all groups updated. Periodically review and update existing programs. ~ V V V V Staff time and volunteers GF R&P/H&CA CVB P.6 Make information about the rehabilitation tax credit programs and application forms available through as many sources as possible. Provide positive case studies of successful rehabilitation projects. V V V V V Staff time GF HPC;Planning and Zonin P.7 Make information about historic façade easements and conservation easements readily available through as many sources as possible. Provide positive case studies of V V V Staff time GF HPC; HCAM; Planning ar Zoning
CON M UN ITY W OR K PRO GRAM F Y20 26 lo F Y 2030 Item Description 2026 2027 2028 2029 2030 Total Cost (if any) Source of Funds Impact Fee Responsible Department or Agency HP.8 Create a repository of information about all aspects of historic preservation and make this resource readily available and accessible to the public. Develop and maintain the collection to also serve as a resource center for the HPC √ √ √ 2029 2030 Staff time GF Eligible HPC; HCAM; Planning and Zoning HP.9 Add a specific historic preservation category to the City's existing website to direct people to technical information about historic preservation that is available locally and on the internet V V V Staff time GF Community Relations Office; Planning and Zoning HP.10 Create a contributing and non-contributing map of structures within the historic district/ Historic Resources Map V GF GIS; Planning and Zoning NEIGHBORHOODIS N.1 Provide limited technical assistance to neighborhood planning efforts in the form of maps, existing zoning and land use, as well as demographic and economic data V V V V V Staff time GF Community Development N.2 Encourage neighborhood "self-help" activities V V V V V Staff time GF Community Development Implement a gateway master plan for major ı JRBAN DESIGN UD.1 entrances to the City that incorporates various recommendations of adopted design guidelines √ 1 1 √ 1 \$1,600,000 GF Yes Transportation UD.2 Continue to apply for federal and state funding to enhance the streetscapes of road corridors in the City V V V V V Staff time GF Community Development; Transportation 3.99 LANE USE - LU.1 Further develop, refine, and implement land use recommendations for "character areas" V V V V V Staff time GF Community Development Periodically report as may be needed on conformance with regional development plan V V V V V Staff time GF Community Development CON MUNIT Y FACIL ITIES CF.1 Periodically update and implement the City's parks and recreation master plan as needed V V V \$150,000 GF, GO Recreation & Parks CF.2 Implement the master plan for the Roswell River Parks $\checkmark$ V 1 ~ V \$35,000,000 BR , IF, GF Recreation & Parks CF.3 Upate the Comprehensive Solid Waste Management Plan every ten years as required; update the Solid Waste Business Plan, Roswell Utility Master Plan and Roswell Stormwater Utility Master Plan as necessary to meet Division goals. V V V V Staff time UF Environmental/ Public Works CF.4 Periodically review and modify sanitation rates and fees to reflect the actual costs of service provision and to further divisions goals Å 4 V V Staff time UF Environmental/ Public Works CF.5 Periodically update and implement the City's Facility Services Master Plan V V V V Staff time GF Environmental/ Public Works CF.6 Periodically update and implement the City's Fleet Master Plan V V V V Staff time GF Environmental/ Public Works 3.d
Total Cost Source of Impact Responsible Department or ltem Description 2026 2027 2028 2029 2030 (if any) Funds Fee Eligible Agency CF.7 Prepare, adopt, and periodically revise as appropriate a municipal policy for use of City- owned buildings and grounds by private, non- profit, and other government users V V 1 ¥ V Staff time GF Administration CF.8 Implement and maintain a customer service policy and action plan in each of the City's departments, with a consistent level of service throughout the departments V V ~ V V Staff time GF Various departments CF.9 Monitor the provision of municipal services and their ability to meet the diversifying needs of the City's population V V V V V Staff time GF Administration; various departments CF.10 Engage in active community policing programs, public education in safety, public education in emergency response and proactive activities through public/private partnerships. V V V V V Staff time GF Police CF.11 Improve the City's current Insurance Services Office (ISO) rating of Class 1. V V √ \$35,500,00 GF, IF, GO Fire Department; Mayor and Council CF.12 Transition to a full-time Staffing model by 2027. V V √ \$6,500,000 GF Fire Department; Mayor and Council CF.13 Improve the capacity of the Fire Marshal's Office and focus efforts on community education. V V 1 Staff time Fire Department CF.14 Establish a formal training program for the Roswell Fire Department. 4 V V Staff time Fire Department CF.15 Establish a comprehensive program for equipment and apparatus replacement. 1 V V Staff time Fire Department CF.16 Build, replace, and relocate fire stations to improve service delivery. 4 V V \$29,000,000 IF, GF, GO Fire Department; Mayor and Council CF.17 Build a new Public Safety Headquarters and reolcate Fire Administration. 4 V V \$23,000,000 IF, GF, GO Fire Department; Mayor and Council CF.18 Periodically review and modify water rates and fees to reflect the actual costs of service provision and to further system goals V V V Staff time UF Environmental/ Public Works CF.19 Continue to prioritize road resurfacing projects, continue drainage maintenance projects, and sidewalk repair projects according to most urgent need V V ۲ ¥ V \$4,000,000 per year; UF, GF, TR, TSPLOST Transportation; Environmental / Public Works CF.20 Investigate the need for traffic calming and integrate traffic calming projects as may be appropriate in the City's capital plan V V V V V \$600,000 GF Yes Transportation CF.21 Develop a program incorporating landscaping/streetscaping and green infrastructure into all major road projects to improve water quality, provide greater community identity and safety ٧ V V V V Staff tim e GF, TSPLOST, PP, UU Transportation; Community Development; Environmental/ Public Works CF.22 Maintenance of an Energy Assurance Plan for the continued operations of critical city services. V V V Staff time GF Administration CF.23 Annually program and implement improvements needed to maintain and upgrade the stormwater management system in compliance with the MS4 NPDES Permit V V ¥ V \$3,200,000/yr UF, GF Environmental/ Public Works; Transportation CF.24 Continue to implement TMDL Impaired Stream monitoring efforts and implementation of the Watershed Improvement Program (WIP). V V ~ 4 \$320,000 UF Environmental/ Public Works 3.d
COMMUNITY WORK PROGRAM FY2026 to FY 2030 Item Description Total Cost Source of Impact Fee Responsible Department or 2026 2027 2028 2029 2030 (if any) Funds Eligible Agency INTER GOVER NMENT AL CO ORDINATION IC.1 Periodically revisit and update intergovernmental service agreements V V ~ ~ √ Staff time GF Administration/Environmental/P ublic Works IC.2 Monitor new forms of governance proposed in North Fulton County for their impact on Roswell V V V V V Staff time GF Administration IC.3 Continue to evaluate the necessity of moving the court system to a new location. V V V V V Staff time GF Administration IC.4 Periodically revisit and revise the intergovernmental land use dispute resolution process V V Staff time GF Administration IC.5 Assist in implementing the Water Resources Management Plan prepared by the Metropolitan North Georgia Water Planning District V V 4 4 \$115,000/year UF Environmental/ Public Works IC.7 Coordinate a meeting between the City and the public and private schools. V V V V √ Staff time GF Administration
3.e Packet Pg. 73
Ree creation and Parks Transportation Public Safety Total Beginning Impact Fee Allocation by Categories FY 23 \$ 1,409,474.19 \$ 1,131,426.83 \$ 2,454,005.92 \$ 4,994,906.94 Impact Fee Credits FY 23 \$ 361,837.98 \$ 8,660.44 \$ 370,498.42 Encumbrances \$ 2,479.19 s 578,172.15 \$ 34,010.00 \$ 614,661.34 Total Fund Balance FY 23 \$ 1,411,953.38 \$ 2,071,436.96 \$ 2,496,676.36 \$ 5,980,066.70 23.61% 34.64% 41.75% 100.00% Impact Fees Collected from FY 24 \$ 84,937.00 \$ 308,018.90 \$ 145,490.90 \$ 538,446.80 Interest \$ 18,676,167,546.83 \$ 67,727,993,500.95 \$ 31,990,915,913.43 \$ 219,882.59 (Administrative/Other Costs) \$ (98,992,374.76) \$ (358,989,867.57) \$ (169,566,734.13) \$ (1,165.48) Impact Fee Credits FY 24 \$ - \$ (361,837.98) \$ (8,660.44) \$ (370,498.42) Encumbrances FY 24 \$ (230,976.49) \$ (31,439.53) \$ (34,010.00) \$ (296,426.02) (Project Expenditures) \$ - \$ (859,949.09) \$ (6,023.18) \$ (865,972.27) Impact Fee Allocation 2904 \$ 18,578,441,085.96 \$ 67,370,129,862.64 \$ 31,823,942,652.94 \$1 17,772,513,601.54 \$ 117,772,513,601.54 Impact Fee All Current GL Impact Fee Fund Balance FY 24 \$ 1 17,773,180,525.98 370,498.42 Credits F und Balance FY 24 296,426.02 Encumbrances 18,578,672,062.45 67,370,523,140.15 31,823,985,323.38 - 117,773,180,525.98 Current Fund F * Includes object 135201 (Impact Fee Credits) an d 1352 21 (Encumbrances) - Facility Project Name Project # Spent Encumbered N/A Bank Fees \$ 1,165.48 \$ - Transportation Old Roswell / Warsaw Intersection 90009 574,073.63 (0.01) Transportation Woodstock Rd at Hwy 92 Turn Lane 91018 200,000.00 - Transportation Jones Road Bridge Replacement 93007 85,875.46 31,439.54 Transportation Total 859,949.09 31,439.53 Police Public Safety Headquarters-Bond23 57101 26,600.00 Fire Fire Station #23 Replacement 57102 - 7,410.00 Fire Fire Station #8 50014 6,023.18 - Public Safety Total \$ 6,023.18 \$ 34,010.00 Recreation Ace Sand Phase I & II Construction 68201 - 230,000.00 Recreation RIVER PARKS MASTER PLAN 60067 · · · · · · · · · · · · · · · · · · · 976.49 Recreation Total s - \$ 230,976.49 \$ 865,972.27 \$ 296,426.02
City of Roswell Mayor and Council AGENDA ITEM REPORT ID # - 10066 MEETING DATE: September 22, 2025 DEPARTMENT: Economic Development ITEM TYPE: Resolution Approval of a Resolution authorizing the Roswell Development Authority (RDA) to enter into negotiations on a City owned property located at Bowen Road and Highway 92. Item Summary: A Resolution authorizing the Roswell Development Authority to enter into negotiations on City-owned property at Bowen Road and Highway 92. Staff Recommendation: N/A Financial Impact: N/A Recommended Motion: Motion to approve a Resolution authorizing the Roswell Development Authority to enter into negotiations on a City-owned property located at Bowen Road and Highway 92. Presented by: Joseph Cusack, Assistant City Attorney
4.a RESOLUTION TO AUTHORIZE THE ROSWELL DEVELOPMENT AUTHORITY TO ENTER INTO NEGOTIATIONS ON A CITY OWNED PROPERTY LOCATED AT BOWEN ROAD AND HIGHWAY 92 WHEREAS, the Mayor and Council identified a city owned property located at Bowen Road and Highway 92 as an economic development project opportunity; and WHEREAS, Mayor and Council wish the Roswell Development Authority to review and negotiate terms for the sale of City owned property for the purposes of economic development; and WHEREAS, the Roswell Development Authority is vested with redevelopment powers as contemplated in O.C.G.A. 6; and WHEREAS, the Roswell Redevelopment Authority is tasked with creating jobs, dynamic economic projects, and stimulating economic growth for the benefit of the City of Roswell; and WHEREAS, Mayor and Council desires a redevelopment project which includes commercial uses consistent with the City's Economic Development plans with specific uses to be defined in the sale and purchase agreement; and WHEREAS, Mayor and Council wish to further specify that the negotiations shall reserve a 2.5 acre portion of the property with access to Hwy 92 for future civic uses by the City of Roswell; and WHEREAS, Mayor and Council will entertain a net purchase price of no less than the original acquisition price of the property \$4,500,000.00 and customary closing costs; and WHEREAS, prior to the Mayor and Council authorizing the final sale of this property on a future date, the Roswell Development Authority shall enter into an Intergovernmental Agreement defining the sale, property uses, agreement terms and reimbursement of funds from the Roswell Development Authority to the City of Roswell; and WHEREAS, this resolution shall expire on December 31, 2025 unless otherwise extended by the City Administrator; and NOW, THEREFORE, BE IT RESOLVED, by the Mayor and Council of the City of Roswell, the parcel known as the Bowen Road and Hwy 92 property is considered as an economic development opportunity and is consistent with the map attached in Exhibit A. The above Resolution was read and approved by the Mayor and Council of the City of Roswell on the 22nd day of September, 2025. Kurt M. Wilson, Mayor Attest: Nancy Saviano Long, City Clerk _ (Seal)
Mayor and Council AGENDA ITEM REPORT ID # - 10068 MEETING DATE: September 22, 2025 DEPARTMENT: City Attorney's Report ITEM TYPE: Closure Recommendation for Closure to Discuss Personnel, Litigation and Real Estate. Item Summary: Recommendation for Closure to Discuss Personnel, Litigation and Real Estate. Presented by: David Davidson, City Attorney

Images Found in Document

45 image(s) extracted

_page_0_Picture_0.jpeg

_page_0_Picture_0.jpeg

.JPEG

_page_2_Picture_0.jpeg

_page_2_Picture_0.jpeg

.JPEG

_page_3_Picture_3.jpeg

_page_3_Picture_3.jpeg

.JPEG

_page_4_Picture_0.jpeg

_page_4_Picture_0.jpeg

.JPEG

_page_6_Picture_0.jpeg

_page_6_Picture_0.jpeg

.JPEG

_page_7_Picture_0.jpeg

_page_7_Picture_0.jpeg

.JPEG

_page_8_Picture_1.jpeg

_page_8_Picture_1.jpeg

.JPEG

_page_9_Picture_1.jpeg

_page_9_Picture_1.jpeg

.JPEG

0__page_13_Picture_1.jpeg

0__page_13_Picture_1.jpeg

.JPEG

0__page_14_Picture_0.jpeg

0__page_14_Picture_0.jpeg

.JPEG

0__page_15_Picture_1.jpeg

0__page_15_Picture_1.jpeg

.JPEG

0__page_15_Picture_2.jpeg

0__page_15_Picture_2.jpeg

.JPEG

0__page_17_Picture_0.jpeg

0__page_17_Picture_0.jpeg

.JPEG

2__page_36_Figure_2.jpeg

2__page_36_Figure_2.jpeg

.JPEG

2__page_36_Figure_3.jpeg

2__page_36_Figure_3.jpeg

.JPEG

2__page_38_Picture_0.jpeg

2__page_38_Picture_0.jpeg

.JPEG

3__page_40_Picture_0.jpeg

3__page_40_Picture_0.jpeg

.JPEG

3__page_41_Figure_0.jpeg

3__page_41_Figure_0.jpeg

.JPEG

3__page_41_Picture_5.jpeg

3__page_41_Picture_5.jpeg

.JPEG

3__page_41_Figure_14.jpeg

3__page_41_Figure_14.jpeg

.JPEG

3__page_42_Picture_0.jpeg

3__page_42_Picture_0.jpeg

.JPEG

3__page_42_Picture_1.jpeg

3__page_42_Picture_1.jpeg

.JPEG

3__page_43_Picture_0.jpeg

3__page_43_Picture_0.jpeg

.JPEG

3__page_44_Picture_0.jpeg

3__page_44_Picture_0.jpeg

.JPEG

3__page_45_Picture_0.jpeg

3__page_45_Picture_0.jpeg

.JPEG

3__page_46_Picture_0.jpeg

3__page_46_Picture_0.jpeg

.JPEG

3__page_47_Picture_0.jpeg

3__page_47_Picture_0.jpeg

.JPEG

3__page_48_Picture_0.jpeg

3__page_48_Picture_0.jpeg

.JPEG

3__page_48_Picture_1.jpeg

3__page_48_Picture_1.jpeg

.JPEG

3__page_49_Picture_0.jpeg

3__page_49_Picture_0.jpeg

.JPEG

3__page_49_Figure_1.jpeg

3__page_49_Figure_1.jpeg

.JPEG

4__page_50_Figure_0.jpeg

4__page_50_Figure_0.jpeg

.JPEG

4__page_51_Picture_1.jpeg

4__page_51_Picture_1.jpeg

.JPEG

4__page_52_Picture_0.jpeg

4__page_52_Picture_0.jpeg

.JPEG

4__page_52_Figure_1.jpeg

4__page_52_Figure_1.jpeg

.JPEG

4__page_53_Picture_1.jpeg

4__page_53_Picture_1.jpeg

.JPEG

4__page_54_Picture_0.jpeg

4__page_54_Picture_0.jpeg

.JPEG

4__page_55_Picture_0.jpeg

4__page_55_Picture_0.jpeg

.JPEG

4__page_57_Picture_3.jpeg

4__page_57_Picture_3.jpeg

.JPEG

4__page_57_Picture_14.jpeg

4__page_57_Picture_14.jpeg

.JPEG

4__page_57_Picture_16.jpeg

4__page_57_Picture_16.jpeg

.JPEG

4__page_58_Picture_2.jpeg

4__page_58_Picture_2.jpeg

.JPEG

4__page_58_Picture_8.jpeg

4__page_58_Picture_8.jpeg

.JPEG

6__page_74_Picture_0.jpeg

6__page_74_Picture_0.jpeg

.JPEG

6__page_76_Picture_0.jpeg

6__page_76_Picture_0.jpeg

.JPEG

Loading...